豆豆网

 找回密码
 立即注册

QQ登录

只需一步,快速开始

查看: 3333|回复: 0

2层独栋别墅平面CAD图纸(415平方米)

[复制链接]

0

主题

0

帖子

1127

积分

超级版主

Rank: 8Rank: 8

积分
1127
发表于 2021-2-26 20:03:27 | 显示全部楼层 |阅读模式

该帖子包含附件可供参考学习和下载,您可以 搜索 更多您想要的资源


附件详情

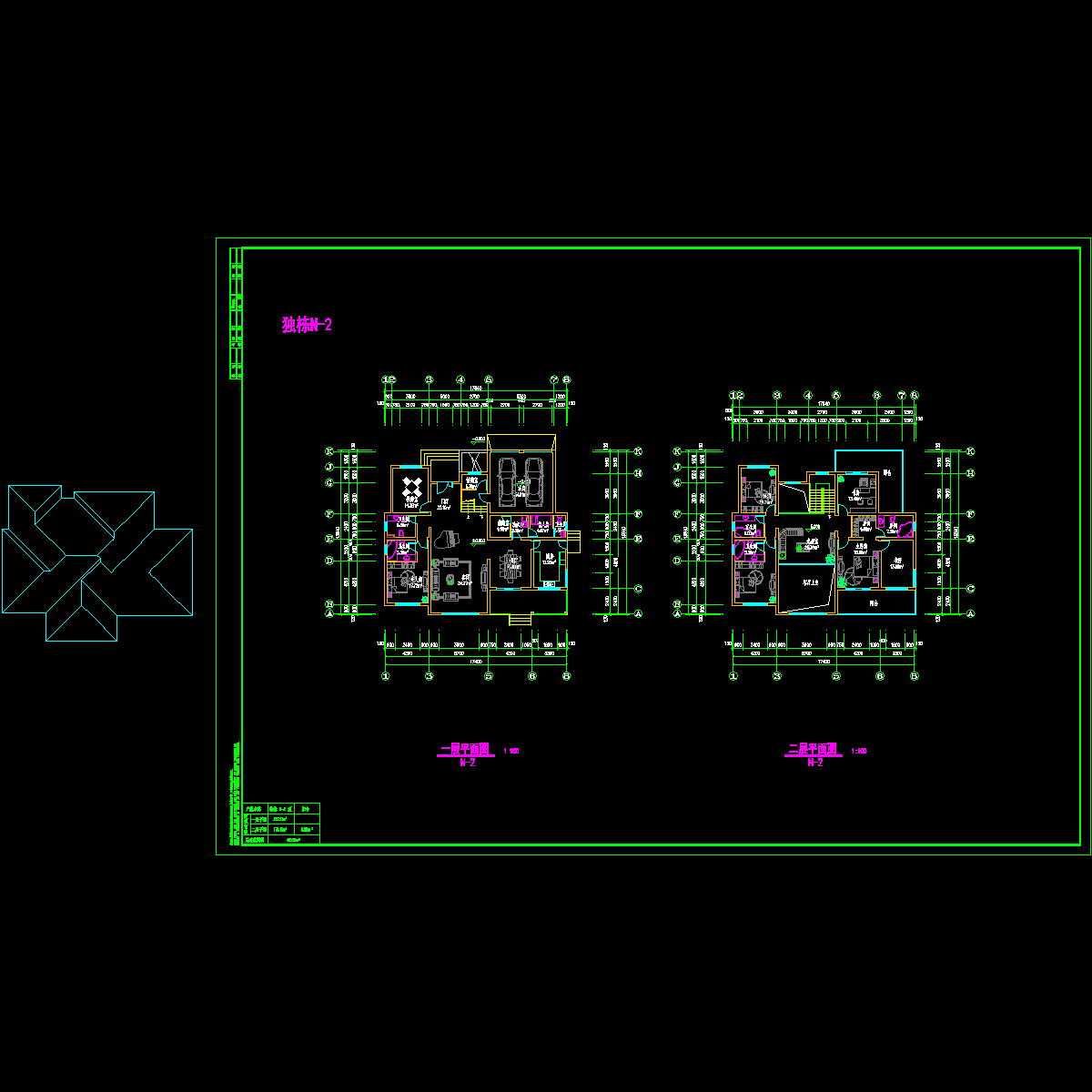
总开间x进深:17.64x15.84米
总建筑面积:415.26平方米

资料包含:各层平面图
参考资料:1张CAD


独栋别墅平面 - 1
第 1 张图
以上是部分图纸截图,有些图框没有放大后再截图,可能截图里不清晰或者看不到内容,您可以在下载后查看具体内容

附件2099v11ew2scceddc01d102.rar

198.86 KB

下载  售价: 100 积分    赚积分

独栋别墅平面相关帖子

回复

使用道具 举报

您需要登录后才可以回帖 登录 | 立即注册

本版积分规则

QQ|联系我们|豆豆网 ( 苏ICP备20004746号-1 )

GMT+8, 2025-11-26 03:15 , Processed in 0.018266 second(s), 27 queries .

本站所有内容均由网友自主分享,如有侵权内容或者违法行为,请及时联系站长删除,本站将根据实际情况进行积分奖励!请查看:免责声明

快速回复 返回顶部 返回列表