豆豆网

 找回密码
 立即注册

QQ登录

只需一步,快速开始

查看: 2230|回复: 0

一份11层办公大楼电气设计CAD施工图纸

[复制链接]

0

主题

0

帖子

1642

积分

超级版主

Rank: 8Rank: 8

积分
1642
发表于 2020-2-21 21:38:38 | 显示全部楼层 |阅读模式

该帖子包含附件可供参考学习和下载,您可以 搜索 更多您想要的资源


  • 建筑类别:办公
  • 建筑高度类型:多层建筑
  • 建筑设计面积:10977平方米
  • 建筑地上层数:11层
  • 图纸设计深度:施工图
  • 参考图纸:64张
  • 负荷等级:二级
  • 防雷等级:第二类
  • 火灾保护分级:二级
  • 接地方式:TN-C-S
  • 强电设计:低压配电,电气照明,建筑物防雷,接地安全
  • 弱电设计: 火灾自动报警系统 ,入侵报警系统,视频监控系统,出入口控制系统,综合布线系统,通信系统,有线电视和卫星接收系统,广播系统,信息网络系统,呼应信号及信息显示

附件详情

  • 一、电气设计说明
  • 二、低压配电系统图
  • 三、竖向配电系统图
  • 四、 配电箱系统
  • 五、弱电系统图
  • 六、消防报警系统图
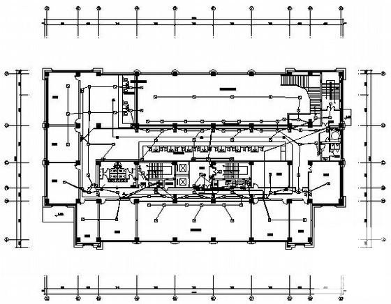
  • 七、照明电气平面图
  • 八、 弱电平面图
  • 九、消防报警平面图
  • 十、防雷接地平面图

附件详情

本稿件是某十一层办公大楼电气施工图纸,工程建筑属于二类高层建筑,建筑耐火等级为二级,建筑设计结构形式为框架结构,总建筑面积10977平方米,建筑高度47.2M,建筑层数11层,设计使用年限50年,本建筑基本使用功能为营业厅、办公楼。
电气设计包含配电系统设计、照明灯具布置、插座动力系统、消防自动报警系统、可视对讲系统、安防监控系统、电话网络系统、防雷接地系统等。

第 1 张图
第 1 张图
第 2 张图
第 2 张图
第 3 张图
第 3 张图
第 4 张图
第 4 张图
以上是部分图纸截图,有些图框没有放大后再截图,可能截图里不清晰或者看不到内容,您可以在下载后查看具体内容

温馨提示:该资料由网友于2020-2-21 21:38:38上传分享,您可以下载该资料进行学习和参考,如有侵权内容或者违法行为,请及时联系站长删除,如有疑问,您可以在电气工程专区发帖交流相关知识。

附件2099v11edecccccdde01defc0c.rar

2.4 MB

下载  售价: 100 积分    赚积分

相关帖子

回复

使用道具 举报

您需要登录后才可以回帖 登录 | 立即注册

本版积分规则

QQ|联系我们|豆豆网 ( 苏ICP备20004746号-1 )

GMT+8, 2025-12-22 19:26 , Processed in 0.017371 second(s), 27 queries .

本站所有内容均由网友自主分享,如有侵权内容或者违法行为,请及时联系站长删除,本站将根据实际情况进行积分奖励!请查看:免责声明

快速回复 返回顶部 返回列表