豆豆网

 找回密码
 立即注册

QQ登录

只需一步,快速开始

查看: 2739|回复: 0

一份11层综合写字楼电气CAD施工图纸(消防设计说明)

[复制链接]

0

主题

0

帖子

963

积分

超级版主

Rank: 8Rank: 8

积分
963
发表于 2020-2-21 21:38:44 | 显示全部楼层 |阅读模式

该帖子包含附件可供参考学习和下载,您可以 搜索 更多您想要的资源


  • 建筑类别:办公,商业
  • 建筑高度类型:高层建筑
  • 建筑设计面积:10370平方米
  • 建筑地上层数:11层
  • 建筑地下层数:1层
  • 图纸设计深度:施工图
  • 参考图纸:30张
  • 设计年代:近代
  • 地下室用途:车库
  • 负荷等级:一级
  • 防雷等级:第二类
  • 火灾保护分级:二级
  • 接地方式:TN-S
  • 强电设计:低压配电,电气照明,建筑物防雷,接地安全
  • 弱电设计: 火灾自动报警系统 ,入侵报警系统,视频监控系统,出入口控制系统,巡更管理系统,建筑设备监控系统,综合布线系统,通信系统,有线电视和卫星接收系统,广播系统,扩声系统,信息网络系统,呼应信号及信息显示

附件详情

  • 一、电气设计说明
  • 二、低压配电干线系统图
  • 三、智能应急疏散照明系统图
  • 四、 配电箱系统
  • 五、照明电气平面图
  • 六、消防设计说明
  • 七、消防自动报警系统图
  • 八、消防自动报警平面图
  • 九、弱电设计说明
  • 十、弱电系统图
  • 十一、 弱电平面图
  • 十二、防雷接地平面图

附件详情

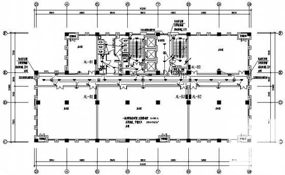
本稿件是某11层综合写字楼电气施工图纸,本建筑物,地上十一层,地下一层,框架结构,地下室为车库及机房等,一二层局部为商业,一到十一层为办公;总建筑面积约10370平米,其中地下室面积约1252平米,建筑总高度40.2m,属于二类高层建筑;地下室层高3.8m,一层层高4.4m,二-十一层层高3.4m。
电气设计包含配电系统设计、智能应急疏散照明系统、普通照明设计、插座动力系统、消防报警系统设计、有线电视系统、综合布线系统、防雷接地系统等。

综合写字楼设计 - 1
第 1 张图
综合写字楼设计 - 2
第 2 张图
综合写字楼设计 - 3
第 3 张图
综合写字楼设计 - 4
第 4 张图
以上是部分图纸截图,有些图框没有放大后再截图,可能截图里不清晰或者看不到内容,您可以在下载后查看具体内容

温馨提示:该资料由网友于2020-2-21 21:38:44上传分享,您可以下载该资料进行学习和参考,如有侵权内容或者违法行为,请及时联系站长删除,如有疑问,您可以在电气工程专区发帖交流相关知识。

附件2099v11edecccfcde2wc1ess0f.rar

903.25 KB

下载  售价: 100 积分    赚积分

综合写字楼设计相关帖子

回复

使用道具 举报

您需要登录后才可以回帖 登录 | 立即注册

本版积分规则

QQ|联系我们|豆豆网 ( 苏ICP备20004746号-1 )

GMT+8, 2025-12-27 19:22 , Processed in 0.015657 second(s), 27 queries .

本站所有内容均由网友自主分享,如有侵权内容或者违法行为,请及时联系站长删除,本站将根据实际情况进行积分奖励!请查看:免责声明

快速回复 返回顶部 返回列表