豆豆网

 找回密码
 立即注册

QQ登录

只需一步,快速开始

查看: 2948|回复: 0

独立基础节点大样图纸(CAD)

[复制链接]

0

主题

0

帖子

629

积分

超级版主

Rank: 8Rank: 8

积分
629
发表于 2021-3-7 16:48:10 | 显示全部楼层 |阅读模式

该帖子包含附件可供参考学习和下载,您可以 搜索 更多您想要的资源


该附件是 独立基础构造大样图(CAD)
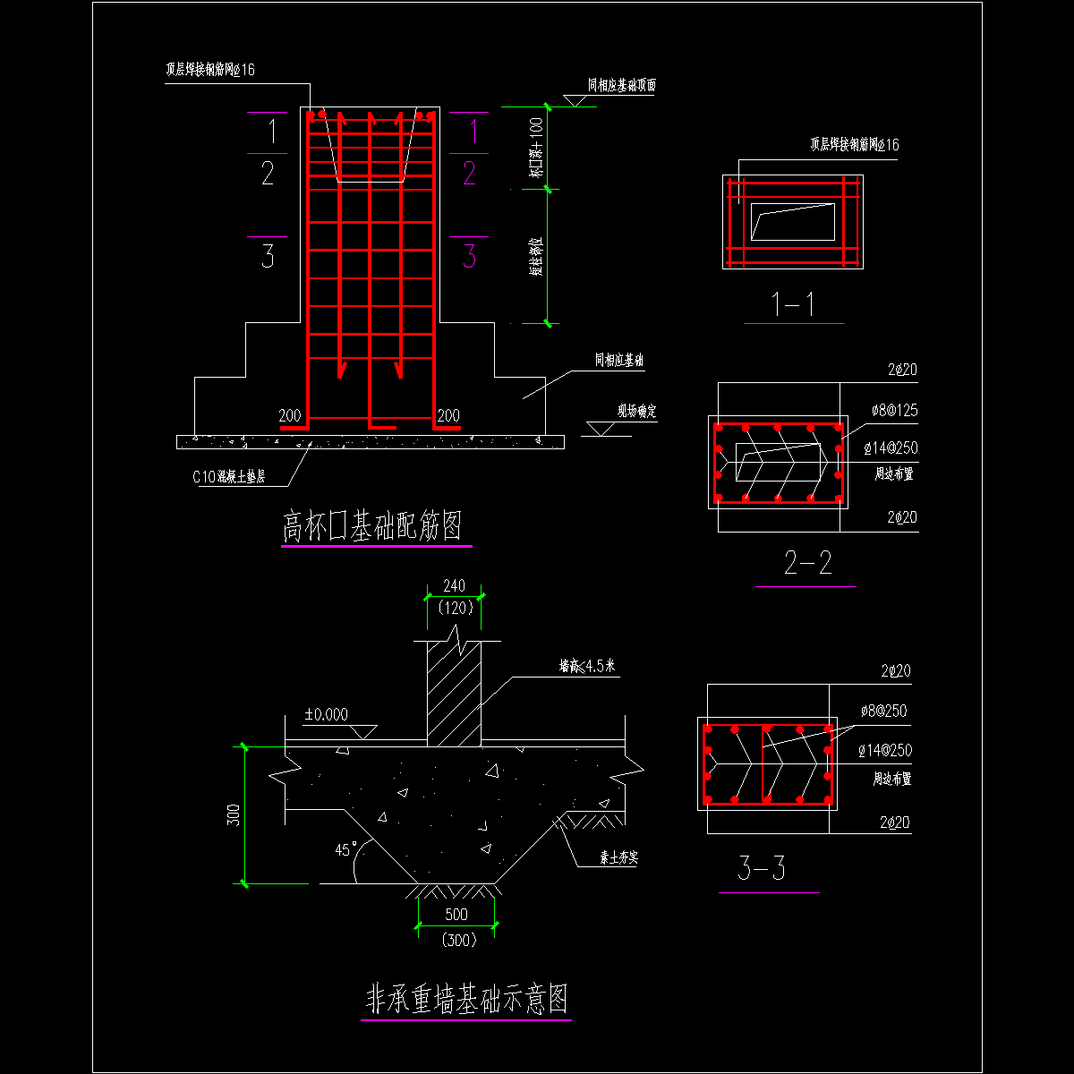
共计图纸6张。主要内容有基础节点、中轴相关口基础详图、独立基础详图、边轴相关基础详图、抗风柱杯口基础&现浇基础详图、高杯口基础详图&非承重墙基础示意图......
边轴相关基础详图
独立基础详图
基础节点
抗风柱杯口基础&现浇基础详图
中轴相关口基础详图

179-180.基础节点.dwg
179-180.基础节点.dwg
181.中轴相关口基础详图.dwg
181.中轴相关口基础详图.dwg
182-183.独立基础详图.dwg
182-183.独立基础详图.dwg
184.边轴相关基础详图.dwg
184.边轴相关基础详图.dwg
185.抗风柱杯口基础&现浇基础详图.dwg
185.抗风柱杯口基础&现浇基础详图.dwg
186.高杯口基础详图&非承重墙基础示意图.dwg
186.高杯口基础详图&非承重墙基础示意图.dwg
以上是部分图纸截图,有些图框没有放大后再截图,可能截图里不清晰或者看不到内容,您可以在下载后查看具体内容

附件2099v11ew2cs1ccsfdfdc0c.zip

471.1 KB

售价: 100 积分    赚积分

独立基础大样图相关帖子

回复

使用道具 举报

您需要登录后才可以回帖 登录 | 立即注册

本版积分规则

QQ|联系我们|豆豆网 ( 苏ICP备20004746号-1 )

GMT+8, 2025-12-17 07:21 , Processed in 0.017009 second(s), 27 queries .

本站所有内容均由网友自主分享,如有侵权内容或者违法行为,请及时联系站长删除,本站将根据实际情况进行积分奖励!请查看:免责声明

快速回复 返回顶部 返回列表