豆豆网

 找回密码
 立即注册

QQ登录

只需一步,快速开始

查看: 6144|回复: 0

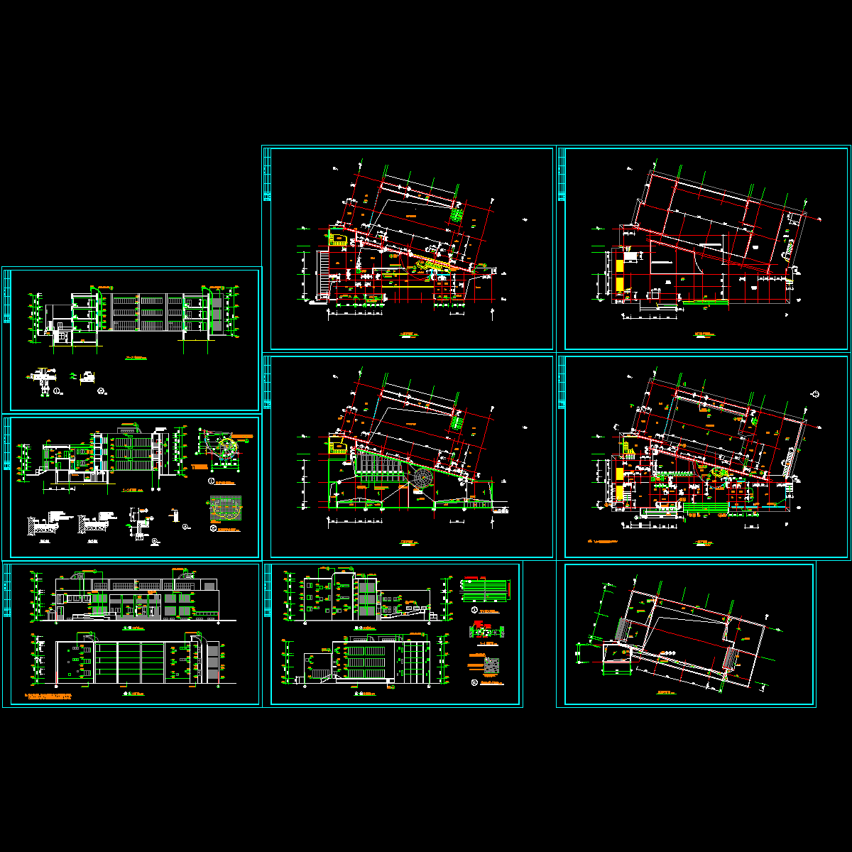
3层幼儿园建筑平立剖CAD施工图纸

[复制链接]

0

主题

0

帖子

888

积分

超级版主

Rank: 8Rank: 8

积分
888
发表于 2021-3-14 20:16:16 | 显示全部楼层 |阅读模式

该帖子包含附件可供参考学习和下载,您可以 搜索 更多您想要的资源


  • 建筑高度:多层建筑

  • 建筑结构形式:钢筋混凝土结构

  • 钢筋混凝土结构:框架剪力墙

  • 图纸设计深度:施工图

  • 图纸设计格式:天正建筑CAD 7.0,CAD2000

  • 效果图:无

设计说明:湖畔壹号 建筑施工 图(含多栋楼图纸),图纸齐全,推荐参考!

该资料包含:立面图、剖面图、平面图、总平面图、设计说明书、详图

三层幼儿园建筑平立剖图

三层幼儿园建筑平立剖图

三层幼儿园建筑平立剖图

三层幼儿园建筑平立剖图

三层幼儿园建筑平立剖图

三层幼儿园建筑平立剖图


幼儿园建筑施工图 - 1
第 1 张图
以上是部分图纸截图,有些图框没有放大后再截图,可能截图里不清晰或者看不到内容,您可以在下载后查看具体内容

附件2099v11eww0e1e0cwcssscw.dwg

2.18 MB

下载  售价: 100 积分    赚积分

幼儿园建筑施工图相关帖子

回复

使用道具 举报

您需要登录后才可以回帖 登录 | 立即注册

本版积分规则

QQ|联系我们|豆豆网 ( 苏ICP备20004746号-1 )

GMT+8, 2025-11-25 05:37 , Processed in 0.015525 second(s), 27 queries .

本站所有内容均由网友自主分享,如有侵权内容或者违法行为,请及时联系站长删除,本站将根据实际情况进行积分奖励!请查看:免责声明

快速回复 返回顶部 返回列表