豆豆网

 找回密码
 立即注册

QQ登录

只需一步,快速开始

查看: 724|回复: 0

3层体育馆玻璃幕墙系统深化设计CAD施工图纸(节点图纸超详细)

[复制链接]

0

主题

0

帖子

1596

积分

超级版主

Rank: 8Rank: 8

积分
1596
发表于 2020-2-22 17:05:17 | 显示全部楼层 |阅读模式

该帖子包含附件可供参考学习和下载,您可以 搜索 更多您想要的资源


  • 幕墙面板材料:玻璃幕墙
  • 玻璃幕墙:半隐框
  • 金属幕墙:单层铝板
该项目是体育中心游泳馆玻璃幕墙系统工程,金属格栅、玻璃幕墙、铝板幕墙、压型钢板墙面系统。抗震设防烈度为7度。
该资料包含:深化设计总说明,立面图,平面图,幕墙门窗大样图,幕墙 节点图 ,铝合金型材表,共计106张图。幕墙 节点图 非常详细。
立面图
一层平面图
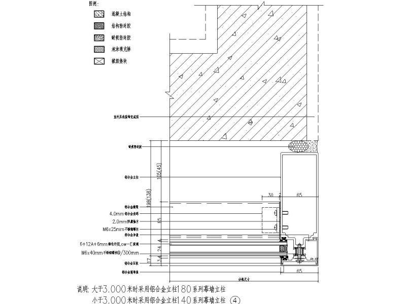
幕墙 节点图
幕墙节点
幕墙节点
铝合金门窗节点图
幕墙节点
幕墙门窗大样图
玻璃幕墙设计施工图 - 1
第 1 张图
玻璃幕墙设计施工图 - 2
第 2 张图
玻璃幕墙设计施工图 - 3
第 3 张图
玻璃幕墙设计施工图 - 4
第 4 张图
玻璃幕墙设计施工图 - 5
第 5 张图
玻璃幕墙设计施工图 - 6
第 6 张图
玻璃幕墙设计施工图 - 7
第 7 张图
玻璃幕墙设计施工图 - 8
第 8 张图
以上是部分图纸截图,有些图框没有放大后再截图,可能截图里不清晰或者看不到内容,您可以在下载后查看具体内容

温馨提示:该资料由网友于2020-2-22 17:05:17上传分享,您可以下载该资料进行学习和参考,如有侵权内容或者违法行为,请及时联系站长删除,如有疑问,您可以在建筑施工专区发帖交流相关知识。

附件2099v11edfcewecdfwfe0ccfed.rar

6.79 MB

下载  售价: 100 积分    赚积分

玻璃幕墙设计施工图相关帖子

回复

使用道具 举报

您需要登录后才可以回帖 登录 | 立即注册

本版积分规则

QQ|联系我们|豆豆网 ( 苏ICP备20004746号-1 )

GMT+8, 2025-12-22 05:46 , Processed in 0.016921 second(s), 27 queries .

本站所有内容均由网友自主分享,如有侵权内容或者违法行为,请及时联系站长删除,本站将根据实际情况进行积分奖励!请查看:免责声明

快速回复 返回顶部 返回列表