豆豆网

 找回密码
 立即注册

QQ登录

只需一步,快速开始

查看: 595|回复: 0

一份钢框架结构雨棚结构CAD施工图纸(预应力混凝土管桩)

[复制链接]

0

主题

0

帖子

1085

积分

超级版主

Rank: 8Rank: 8

积分
1085
发表于 2020-2-22 20:03:31 | 显示全部楼层 |阅读模式

该帖子包含附件可供参考学习和下载,您可以 搜索 更多您想要的资源


  • 建筑类别:工业建筑
  • 图纸设计深度:施工图
  • 民用建筑设计使用年限:50年
  • 建筑设计结构形式:钢结构
  • 钢结构:轻钢结构
  • 基础形式 :桩基础
  • 结构安全等级:二级
  • 地基基础设计等级:丙级
  • 参考图纸:2张
  • 设计年代:近代

附件详情

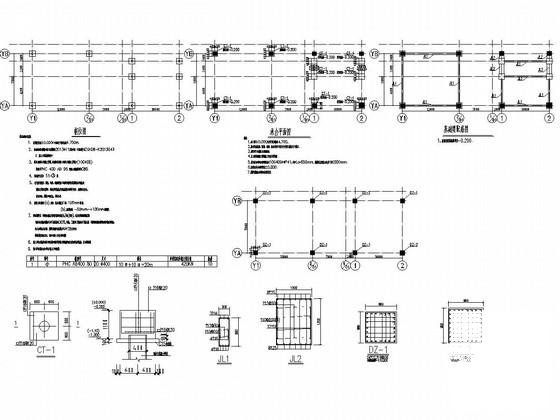
该项目是某厂房进料区雨棚项目,钢框架结构,桩选用预应力混凝土管桩,该资料包含:桩基础设计说明,承台平面图,基础梁配筋图,钢梁 平面布置图 ,柱脚 节点详图 等共计2张图。
分享投稿时间:近几年11月。

上部结构图

钢雨棚结构施工图 - 1
第 1 张图
钢雨棚结构施工图 - 2
第 2 张图
以上是部分图纸截图,有些图框没有放大后再截图,可能截图里不清晰或者看不到内容,您可以在下载后查看具体内容

温馨提示:该资料由网友于2020-2-22 20:03:31上传分享,您可以下载该资料进行学习和参考,如有侵权内容或者违法行为,请及时联系站长删除,如有疑问,您可以在建筑施工专区发帖交流相关知识。

附件2099v11edfc2w200221f0edccd.rar

338.66 KB

下载  售价: 100 积分    赚积分

钢雨棚结构施工图相关帖子

回复

使用道具 举报

您需要登录后才可以回帖 登录 | 立即注册

本版积分规则

QQ|联系我们|豆豆网 ( 苏ICP备20004746号-1 )

GMT+8, 2025-12-28 21:12 , Processed in 0.025862 second(s), 28 queries .

本站所有内容均由网友自主分享,如有侵权内容或者违法行为,请及时联系站长删除,本站将根据实际情况进行积分奖励!请查看:免责声明

快速回复 返回顶部 返回列表