豆豆网

 找回密码
 立即注册

QQ登录

只需一步,快速开始

查看: 1966|回复: 0

7.5度带车库阁楼水泥土搅拌桩住宅结构设计图纸cad平面布置图

[复制链接]

0

主题

0

帖子

1436

积分

超级版主

Rank: 8Rank: 8

积分
1436
发表于 2021-10-26 20:35:18 | 显示全部楼层 |阅读模式

该帖子包含附件可供参考学习和下载,您可以 搜索 更多您想要的资源


附件详情

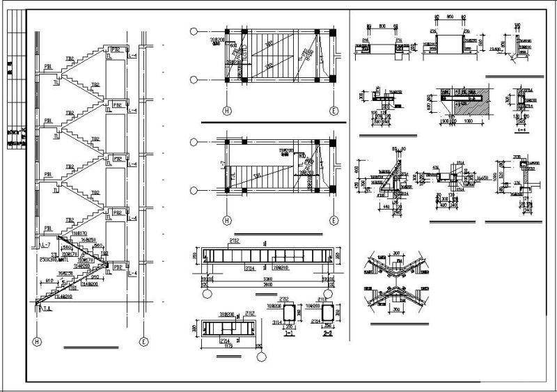
某7.5度带车库阁楼水泥土搅拌桩住宅结构设计图 该资料为:某7.5度带车库阁楼水泥土搅拌桩住宅结构设计图 该资料包含: 结构设计说明 、基础桩位图、基础平面布置图、结构平面图、楼梯详图、构造柱平面图、构造柱详图共8张图纸。

第 1 张图
第 1 张图
第 2 张图
第 2 张图
第 3 张图
第 3 张图
第 4 张图
第 4 张图
以上是部分图纸截图,有些图框没有放大后再截图,可能截图里不清晰或者看不到内容,您可以在下载后查看具体内容

附件2099v11ecwscdc0c2c1c21s.rar

1003.11 KB

下载  售价: 100 积分    赚积分

相关帖子

回复

使用道具 举报

您需要登录后才可以回帖 登录 | 立即注册

本版积分规则

QQ|联系我们|豆豆网 ( 苏ICP备20004746号-1 )

GMT+8, 2025-12-27 04:37 , Processed in 0.047702 second(s), 27 queries .

本站所有内容均由网友自主分享,如有侵权内容或者违法行为,请及时联系站长删除,本站将根据实际情况进行积分奖励!请查看:免责声明

快速回复 返回顶部 返回列表