豆豆网

 找回密码
 立即注册

QQ登录

只需一步,快速开始

查看: 1977|回复: 0

卫生院门诊楼基坑放坡挂网喷砼支护大样图cad平面布置图及剖面图

[复制链接]

0

主题

0

帖子

889

积分

超级版主

Rank: 8Rank: 8

积分
889
发表于 2021-10-26 20:58:45 | 显示全部楼层 |阅读模式

该帖子包含附件可供参考学习和下载,您可以 搜索 更多您想要的资源


该附件为: 卫生院门诊楼基坑放坡挂网喷砼支护图纸2019, 格式为CAD,节点清晰,同类工程可下载参考。
一、项目概要:
  1. 该项目用地性质为医疗卫生用地,道路通达,交通方便,有利于工程建设施工,钻孔孔口标高为25.81~31.16m,一层地下室结构, 基坑周长约272m,基坑开挖深度约4.80m。基坑采用放坡挂网喷砼的支护方法,基坑安全等级为三级.
  2. 据旋挖资料分析,地下水位随季节性降雨发生变化,一般丰水期水位较高,枯水期水位略有降落,场地水位埋深年变幅约1.00~1.50m。钻孔施工期间测得场区初见水位埋深在1.80~4.90m,稳定混合水位埋深在1.30~4.10m,高程23.03~29.46m,场地地下水位变化主要受季节和降雨量影响。
二、基坑抢险加固预案:
1、基坑开挖前,应预计事故发生的可能性,作好基坑抢险加固的准备工作。储备止水堵漏的必要器材;
加固前的钢材、水泥、编织草袋等。
2、本基坑周边建筑物较为密集,应该采取有效的基坑保护措施和应急预案:
(1)基坑周边道路要进行硬化,做好基坑周边雨水截流,防止地表水流进基坑。
(2)施工前应对周边建筑的基础情况摸查清楚,尤其是为天然地基的房屋。
(3)基坑漏水、流土,坑内降水及开挖使坑外地面或道路下沉、建筑物倾斜开裂、管道爆裂时,应立即停止坑内降水和挖土,须作好基坑内排水和通风措施。
(4)当支护结构出现漏水时,应在裂缝处凿V字形槽,埋管或抽管成孔,压浆封缝,以达到止水效果;
(5)根据 基坑监测 结果,及时反馈信息。
(6)当基坑支护结构变形超过允许值或有失稳前兆时,应按下列规定立即采取加固措施。
a.当支护结构变形过大,明显倾斜时,可在坑底与坑壁架设斜撑。
b.当坡脚失稳出现滑移时,应立即停止土方开挖,并堆砂包反压高1米。
三、相关图片:
基坑平面布置图.jpg
基坑支护大样图.jpg
基坑支护剖面图.jpg
排水井大样图.jpg
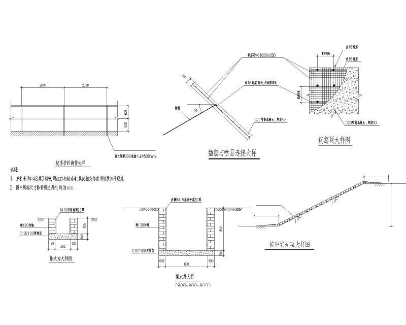
支护大样图.jpg
钻孔地质剖面图.jpg
基坑平面布置图
基坑平面布置图
基坑支护大样图
基坑支护大样图
基坑支护剖面图
基坑支护剖面图
排水井大样图
排水井大样图
支护大样图
支护大样图
钻孔地质剖面图
钻孔地质剖面图
以上是部分图纸截图,有些图框没有放大后再截图,可能截图里不清晰或者看不到内容,您可以在下载后查看具体内容

附件2099v11cdfcfc02w1ww1ws1.rar

5.87 MB

下载  售价: 100 积分    赚积分

相关帖子

回复

使用道具 举报

您需要登录后才可以回帖 登录 | 立即注册

本版积分规则

QQ|联系我们|豆豆网 ( 苏ICP备20004746号-1 )

GMT+8, 2025-12-31 23:08 , Processed in 0.064986 second(s), 27 queries .

本站所有内容均由网友自主分享,如有侵权内容或者违法行为,请及时联系站长删除,本站将根据实际情况进行积分奖励!请查看:免责声明

快速回复 返回顶部 返回列表