豆豆网

 找回密码
 立即注册

QQ登录

只需一步,快速开始

查看: 1995|回复: 0

6层钢混框架结构商业楼加固_钢连廊施工图纸cad平面图

[复制链接]

0

主题

0

帖子

2089

积分

超级版主

Rank: 8Rank: 8

积分
2089
发表于 2021-10-28 21:20:29 | 显示全部楼层 |阅读模式

该帖子包含附件可供参考学习和下载,您可以 搜索 更多您想要的资源


  • 建筑类别:商业
  • 建筑高度类型:多层建筑
  • 建筑地上层数:6层
  • 建筑设计结构形式:钢筋混凝土结构
  • 抗震设防烈度:6度抗震
  • 参考图纸:18张
  • 设计年代:近代
该附件为:钢混框架结构商业楼加固 钢连廊施工图2020,格式为CAD版本。
一、简介:
该项目位于贵阳,原设计为商场,六层房间功能改变
二、目录:
结构加固改造设计总说明、钢结构设计总说明、六层梁加固平面图、屋顶梁加固平面图、六层板加固平面图、屋顶板加固及洞口补强图、加固节点大样。。。
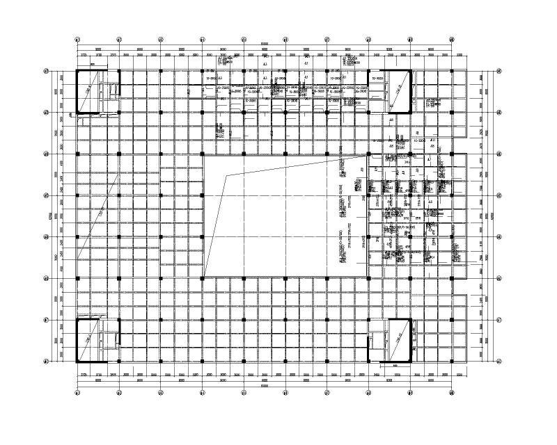
三、相关图片:
六层梁加固平面图.jpg
屋顶梁加固平面图.jpg
六层板底加固平面图.jpg
六层梁加固平面图
六层梁加固平面图
屋顶梁加固平面图
屋顶梁加固平面图
六层板底加固平面图
六层板底加固平面图
以上是部分图纸截图,有些图框没有放大后再截图,可能截图里不清晰或者看不到内容,您可以在下载后查看具体内容

附件2099v11cddf2cccd0efesf0.dwg

2.54 MB

下载  售价: 100 积分    赚积分

相关帖子

回复

使用道具 举报

您需要登录后才可以回帖 登录 | 立即注册

本版积分规则

QQ|联系我们|豆豆网 ( 苏ICP备20004746号-1 )

GMT+8, 2025-12-30 23:22 , Processed in 0.015939 second(s), 28 queries .

本站所有内容均由网友自主分享,如有侵权内容或者违法行为,请及时联系站长删除,本站将根据实际情况进行积分奖励!请查看:免责声明

快速回复 返回顶部 返回列表