豆豆网

 找回密码
 立即注册

QQ登录

只需一步,快速开始

查看: 1331|回复: 0

山庄湖区施工套图纸cad平面图

[复制链接]

0

主题

0

帖子

1385

积分

超级版主

Rank: 8Rank: 8

积分
1385
发表于 2021-10-28 21:21:18 | 显示全部楼层 |阅读模式

该帖子包含附件可供参考学习和下载,您可以 搜索 更多您想要的资源


  • 知名地产类型:农业观光园
  • 图纸设计深度 :施工图
  • 项目所在地:江西
  • 图纸设计风格:现代风格
  • 图纸设计格式:CAD2000
  • 参考图纸:9张
  • 景观设施:亭廊花架,平台栈道汀步,座凳座椅,景墙围墙,驳岸挡土墙,大门,栏杆,树池花坛花钵,雕塑,水景设计,景观照明,自行车棚,停车场,管理用房,公用厕所,标识系统,铺装设计

附件详情

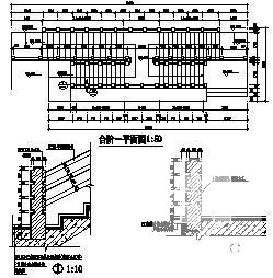
【江西】某山庄湖区施工套图: 包含湖区平面图、临水长廊详图、台阶做法详图、拱桥详图、树池详图、花池详图等。

第 1 张图
第 1 张图
第 2 张图
第 2 张图
第 3 张图
第 3 张图
第 4 张图
第 4 张图
以上是部分图纸截图,有些图框没有放大后再截图,可能截图里不清晰或者看不到内容,您可以在下载后查看具体内容

附件2099v11cdscfwsw2fc101wd.rar

1000.34 KB

下载  售价: 100 积分    赚积分

相关帖子

回复

使用道具 举报

您需要登录后才可以回帖 登录 | 立即注册

本版积分规则

QQ|联系我们|豆豆网 ( 苏ICP备20004746号-1 )

GMT+8, 2025-12-31 12:56 , Processed in 0.016535 second(s), 27 queries .

本站所有内容均由网友自主分享,如有侵权内容或者违法行为,请及时联系站长删除,本站将根据实际情况进行积分奖励!请查看:免责声明

快速回复 返回顶部 返回列表