豆豆网

 找回密码
 立即注册

QQ登录

只需一步,快速开始

查看: 1505|回复: 0

基坑支护SMW工法复合支护施工图纸设计cad剖面图

[复制链接]

0

主题

0

帖子

1205

积分

超级版主

Rank: 8Rank: 8

积分
1205
发表于 2021-10-28 21:37:37 | 显示全部楼层 |阅读模式

该帖子包含附件可供参考学习和下载,您可以 搜索 更多您想要的资源


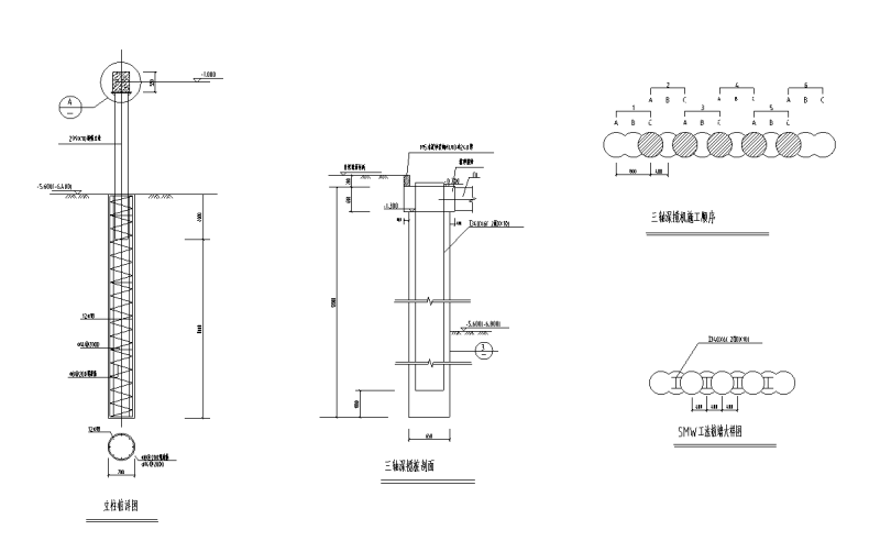
该资料为 基坑支护SMW工法施工图设计 ,共计10张CAD 图纸,推荐下载!
一、资料包含施工图设计内容
1、SMW工法加一道钢支撑
该项目地下两层。首层室内标高为黄海高程3.45m,室外标高为-0.45m;地下一层地面标高-5.2m,地下二层地面标高为-8.8m;东北角空调及配电房设计为地下一层,地面标高为-6.45m;西北角有2层汽车坡道。
桩基采用预应力混凝土管桩,桩长约32~35 m,主楼桩台板厚1.6m,辅房桩台板厚1.2m,桩台板挑出地下室墙面0.4m。该项目南边A轴线距艾默生厂房9.8m。其间设计有雨水、污水、给水、消防4根管道。东边(11)轴线距入园主干道中线9.5m(地下室外墙距道路边线约为5.5m,其地下埋有给水、污水、光缆3条管线)在道路东侧2~20m有园区一期工程。北侧距机场路处红线16~30m。西侧距规划河道边6~7m。
2、SMW工法、局部钢筋混凝土支撑
基坑总面积为3971m ,总的周长为295m。设地下室一层。现有场地有一定高差,根据招标文件,实际挖深5.43~7.55m左右。工程现场南面紧邻现门诊楼(6层),北面紧靠东病房楼,西面距多层居民住宅不足20m,施工场地有限。
二、相关图片
SMW工法、局部钢筋混凝土支撑.png
SMW工法加一道钢支撑.png
SMW工法、局部钢筋混凝土支撑剖面图.png
SMW工法、局部钢筋混凝土支撑
SMW工法、局部钢筋混凝土支撑
SMW工法加一道钢支撑
SMW工法加一道钢支撑
SMW工法、局部钢筋混凝土支撑剖面图
SMW工法、局部钢筋混凝土支撑剖面图
以上是部分图纸截图,有些图框没有放大后再截图,可能截图里不清晰或者看不到内容,您可以在下载后查看具体内容

附件2099v11csweecs0cc2c02c0.dwg

1.7 MB

下载  售价: 100 积分    赚积分

相关帖子

回复

使用道具 举报

您需要登录后才可以回帖 登录 | 立即注册

本版积分规则

QQ|联系我们|豆豆网 ( 苏ICP备20004746号-1 )

GMT+8, 2025-11-20 15:56 , Processed in 0.075947 second(s), 27 queries .

本站所有内容均由网友自主分享,如有侵权内容或者违法行为,请及时联系站长删除,本站将根据实际情况进行积分奖励!请查看:免责声明

快速回复 返回顶部 返回列表