豆豆网

 找回密码
 立即注册

QQ登录

只需一步,快速开始

查看: 1686|回复: 0

产公司住宅的标准化户型模块(16个)

[复制链接]

0

主题

0

帖子

1119

积分

超级版主

Rank: 8Rank: 8

积分
1119
发表于 2021-10-29 22:44:36 | 显示全部楼层 |阅读模式

该帖子包含附件可供参考学习和下载,您可以 搜索 更多您想要的资源


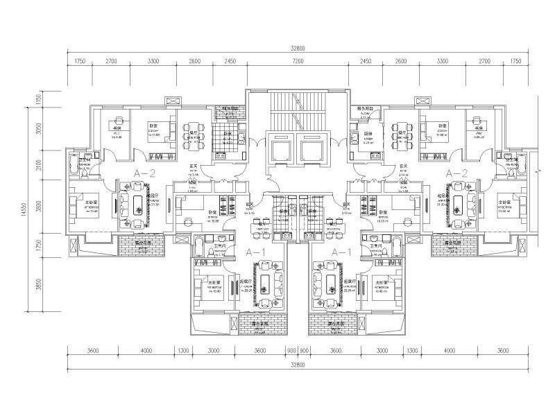
某地产公司住宅的标准化户型模块(16个)
包含:
一梯四户、一梯三户、一梯两户16个户型
一梯两户户型图.jpg
一梯两户户型.jpg
一梯三户户型图.jpg
一梯三户户型1.jpg
一梯三户户型2.jpg
一梯四户户型图.jpg
一梯两户户型图
一梯两户户型图
一梯两户户型
一梯两户户型
一梯三户户型图
一梯三户户型图
一梯三户户型1
一梯三户户型1
一梯三户户型2
一梯三户户型2
一梯四户户型图
一梯四户户型图
以上是部分图纸截图,有些图框没有放大后再截图,可能截图里不清晰或者看不到内容,您可以在下载后查看具体内容

附件2099v11cscecwfwce01fccd.dwg

2.59 MB

下载  售价: 100 积分    赚积分

相关帖子

回复

使用道具 举报

您需要登录后才可以回帖 登录 | 立即注册

本版积分规则

QQ|联系我们|豆豆网 ( 苏ICP备20004746号-1 )

GMT+8, 2025-12-25 04:40 , Processed in 0.016443 second(s), 27 queries .

本站所有内容均由网友自主分享,如有侵权内容或者违法行为,请及时联系站长删除,本站将根据实际情况进行积分奖励!请查看:免责声明

快速回复 返回顶部 返回列表