豆豆网

 找回密码
 立即注册

QQ登录

只需一步,快速开始

查看: 1752|回复: 0

19层框剪结构住宅幕墙结构施工大样图_120张cad平面图

[复制链接]

0

主题

0

帖子

625

积分

超级版主

Rank: 8Rank: 8

积分
625
发表于 2021-10-29 23:55:06 | 显示全部楼层 |阅读模式

该帖子包含附件可供参考学习和下载,您可以 搜索 更多您想要的资源


  • 幕墙面板材料:玻璃幕墙,金属幕墙,石材幕墙
  • 幕墙支承结构:构件式幕墙
  • 玻璃幕墙:半隐框,构件式
  • 金属幕墙:单层铝板
  • 建筑类别:住宅
  • 建筑高度类型:多层建筑
  • 建筑地上层数:19层
  • 建筑地下层数:1层
  • 图纸设计深度:施工图
  • 民用建筑设计使用年限:25年
  • 建筑设计结构形式:钢筋混凝土结构
  • 钢筋混凝土结构:框架剪力墙
  • 结构安全等级:二级
  • 抗震设防烈度:6度抗震
  • 风压:0.3kN/平方米
  • 参考图纸:120张
  • 设计年代:近代
该附件为:框剪结构住宅幕墙 结构施工图 2019 120p,格式为CAD版本。
一、简介:
该项目位于贵州,框架剪力墙结构,主体结构地上19层,地下1层;幕墙高度111.780米
幕墙系统:a、170系列(110系列)横明竖隐铝合金玻璃幕墙系统 b、160系列横明竖隐钢结构玻璃幕墙系统 c、干挂石材幕墙系统 d、铝板幕墙系统 e、高光铝塑板幕墙系统 f、玻璃栏杆系统 g、非断热铝合金窗系统
幕墙建筑设计结构形式:构件式幕墙,幕墙类别:半隐框玻璃幕墙、干挂石材幕墙、铝单板幕墙
二、目录
立面图、平面图、局部大样图、门窗大样图、型材表、埋件图
三、相关图片:
4#北立面图.jpg
4#南立面图.jpg
4#东立面图.jpg
4#西立面图.jpg
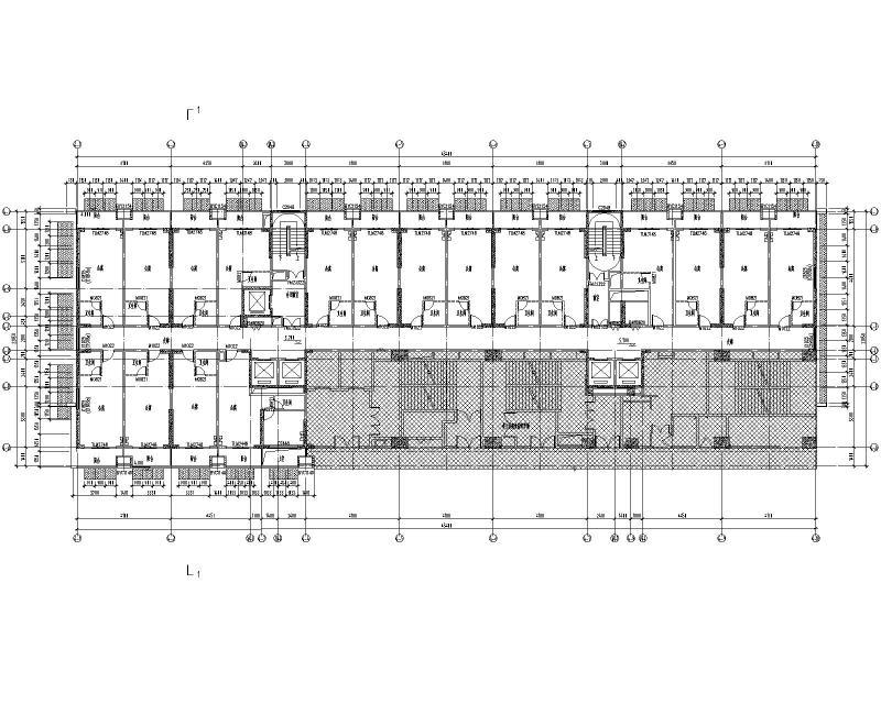
4#一层平面图.jpg
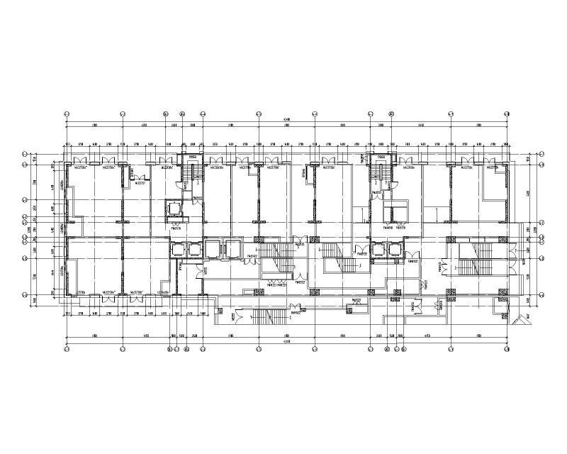
4#二层平面图.jpg
4#四层平面图.jpg
4#七层平面图.jpg
4#屋面层平面图.jpg
4#屋顶层平面图.jpg
4#北立面图
4#北立面图
4#南立面图
4#南立面图
4#东立面图
4#东立面图
4#西立面图
4#西立面图
4#一层平面图
4#一层平面图
4#二层平面图
4#二层平面图
4#四层平面图
4#四层平面图
4#七层平面图
4#七层平面图
4#屋面层平面图
4#屋面层平面图
4#屋顶层平面图
4#屋顶层平面图
以上是部分图纸截图,有些图框没有放大后再截图,可能截图里不清晰或者看不到内容,您可以在下载后查看具体内容

附件2099v11cdefd0010cs1wdw0.rar

25.42 MB

下载  售价: 100 积分    赚积分

相关帖子

回复

使用道具 举报

您需要登录后才可以回帖 登录 | 立即注册

本版积分规则

QQ|联系我们|豆豆网 ( 苏ICP备20004746号-1 )

GMT+8, 2025-11-19 00:57 , Processed in 0.063461 second(s), 27 queries .

本站所有内容均由网友自主分享,如有侵权内容或者违法行为,请及时联系站长删除,本站将根据实际情况进行积分奖励!请查看:免责声明

快速回复 返回顶部 返回列表