豆豆网

 找回密码
 立即注册

QQ登录

只需一步,快速开始

查看: 1768|回复: 0

商业酒店景观工程设计施工图纸cad平面图

[复制链接]

0

主题

0

帖子

1469

积分

超级版主

Rank: 8Rank: 8

积分
1469
发表于 2021-10-29 23:55:33 | 显示全部楼层 |阅读模式

该帖子包含附件可供参考学习和下载,您可以 搜索 更多您想要的资源


  • 图纸设计深度 :施工图
  • 项目所在地:福建
  • 图纸设计风格:现代风格
  • 图纸设计格式:CAD2000
  • 参考图纸:50张
  • 设计年代:近代
  • 景观设施:亭廊花架,座凳座椅,景墙围墙,大门,栏杆,树池花坛花钵,停车场,铺装设计

附件详情

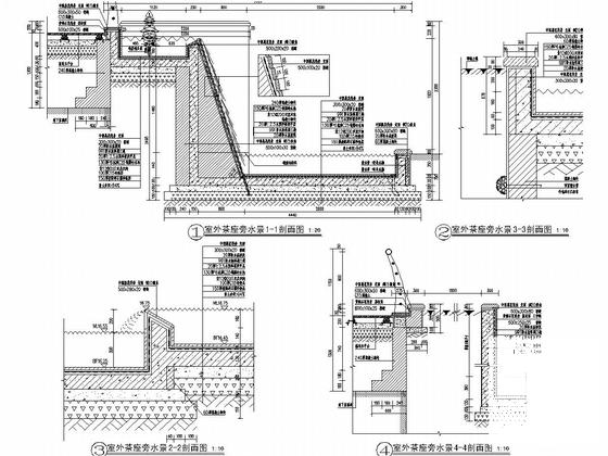
[厦门]商业酒店景观工程设计施工图 资料目录:包括土建(总平面图、室外茶座水景施工图、会议中心入口水景、旋转花池、次入口详图、花池、铺装、栏杆、花钵、幕墙与周边关系处理大样、台阶详图、木平台、人行主入口景墙等)、绿化施工图( 绿化施工 图总平、苗木表等)、水电施工图(景观电气总平面图、投光灯、灯具选型、绿化浇灌及水景给水总平面图、景观排水总平面图、室外茶座旁水景给排水详图、水景详图)等,共50张图纸。

入口景墙详图

木平台详图

花池、路沿、铺装详图

检查井盖详图

室外茶座水景详图

会议中心入口水景详图

跌落水景详图

旋转花池平面图

户外 楼梯详图

次入口水景平面图

次入口水景剖面图

绿化种植平面图

总缩略图

第 1 张图
第 1 张图
第 2 张图
第 2 张图
第 3 张图
第 3 张图
第 4 张图
第 4 张图
第 5 张图
第 5 张图
第 6 张图
第 6 张图
第 7 张图
第 7 张图
第 8 张图
第 8 张图
第 9 张图
第 9 张图
第 10 张图
第 10 张图
第 11 张图
第 11 张图
第 12 张图
第 12 张图
第 13 张图
第 13 张图
第 14 张图
第 14 张图
以上是部分图纸截图,有些图框没有放大后再截图,可能截图里不清晰或者看不到内容,您可以在下载后查看具体内容

附件2099v11cdfwwc1cwee0esfs.rar

27.07 MB

下载  售价: 100 积分    赚积分

相关帖子

回复

使用道具 举报

您需要登录后才可以回帖 登录 | 立即注册

本版积分规则

QQ|联系我们|豆豆网 ( 苏ICP备20004746号-1 )

GMT+8, 2025-12-16 13:49 , Processed in 0.016791 second(s), 27 queries .

本站所有内容均由网友自主分享,如有侵权内容或者违法行为,请及时联系站长删除,本站将根据实际情况进行积分奖励!请查看:免责声明

快速回复 返回顶部 返回列表