豆豆网

 找回密码
 立即注册

QQ登录

只需一步,快速开始

查看: 1732|回复: 0

文化长廊及永久舞台升级改造项目施工大样图cad

[复制链接]

0

主题

0

帖子

1246

积分

超级版主

Rank: 8Rank: 8

积分
1246
发表于 2021-11-6 10:14:03 | 显示全部楼层 |阅读模式

该帖子包含附件可供参考学习和下载,您可以 搜索 更多您想要的资源


  • 使用群体:大众
  • 绿地类型:公共活动广场
  • 图纸设计深度 :施工图
  • 项目所在地:广东
  • 图纸设计格式:天正建筑CAD 7.0,CAD2000,PDF
  • 设计年代:近代
  • 景观设施:亭廊花架,平台栈道汀步,座凳座椅,栏杆,水景设计,公用厕所
附件详情: 文化长廊及永久舞台升级改造项目图纸cad(含园建 绿化 结构 水电 概算书)
包含:封面、建筑总说明、文化长廊索引平面图、文化天花龙骨平面图、节点放大详图、舞台广场详图、厕所板加固详图、景观桥栏杆详图、亲水平台详图、通用大样图设计。
0总平面图.png
栏杆详图.png
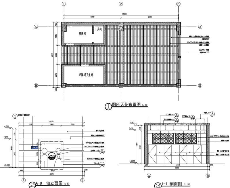
文化长廊两侧厕所翻新详图.png
文化长廊两侧厕所翻新详图1.png
文化长廊两侧厕所翻新详图2.png
文化长廊两侧厕所翻新详图3.png
舞台广场杂物房、公告栏详图.png
舞台广场杂物房、公告栏详图3.png
舞台广场杂物房、公告栏详图4.png
长廊翻新详图.png
长廊翻新详图1.png
长廊翻新详图2.png
长廊翻新详图3.png
0总平面图
0总平面图
栏杆详图
栏杆详图
文化长廊两侧厕所翻新详图
文化长廊两侧厕所翻新详图
文化长廊两侧厕所翻新详图1
文化长廊两侧厕所翻新详图1
文化长廊两侧厕所翻新详图2
文化长廊两侧厕所翻新详图2
文化长廊两侧厕所翻新详图3
文化长廊两侧厕所翻新详图3
舞台广场杂物房、公告栏详图
舞台广场杂物房、公告栏详图
舞台广场杂物房、公告栏详图3
舞台广场杂物房、公告栏详图3
舞台广场杂物房、公告栏详图4
舞台广场杂物房、公告栏详图4
长廊翻新详图
长廊翻新详图
长廊翻新详图1
长廊翻新详图1
长廊翻新详图2
长廊翻新详图2
长廊翻新详图3
长廊翻新详图3
以上是部分图纸截图,有些图框没有放大后再截图,可能截图里不清晰或者看不到内容,您可以在下载后查看具体内容

附件2099pan1cdc1cfdfw2csfw1f.rar

210.55 MB

下载  售价: 100 积分    赚积分

文化长廊施工大样图相关帖子

回复

使用道具 举报

您需要登录后才可以回帖 登录 | 立即注册

本版积分规则

QQ|联系我们|豆豆网 ( 苏ICP备20004746号-1 )

GMT+8, 2025-12-28 23:34 , Processed in 0.037770 second(s), 28 queries .

本站所有内容均由网友自主分享,如有侵权内容或者违法行为,请及时联系站长删除,本站将根据实际情况进行积分奖励!请查看:免责声明

快速回复 返回顶部 返回列表