豆豆网

 找回密码
 立即注册

QQ登录

只需一步,快速开始

查看: 1946|回复: 0

新中式风格别墅花园景观施工图纸设计cad平面图

[复制链接]

0

主题

0

帖子

1096

积分

超级版主

Rank: 8Rank: 8

积分
1096
发表于 2021-11-9 21:30:58 | 显示全部楼层 |阅读模式

该帖子包含附件可供参考学习和下载,您可以 搜索 更多您想要的资源


  • 地形地貌:平地
  • 绿地类型:别墅绿地,庭院绿地
  • 图纸设计深度 :施工图
  • 项目所在地:湖南
  • 图纸设计风格:新中式风格
  • 图纸设计格式:CAD2000
  • 设计年代:近代
  • 景观设施:亭廊花架,平台栈道汀步,座凳座椅,景墙围墙,驳岸挡土墙,大门,栏杆,雕塑,水景设计,景观照明,标识系统,铺装设计
该附件为: [湖南]新中式风格别墅花园 景观施工图 设计 CAD。
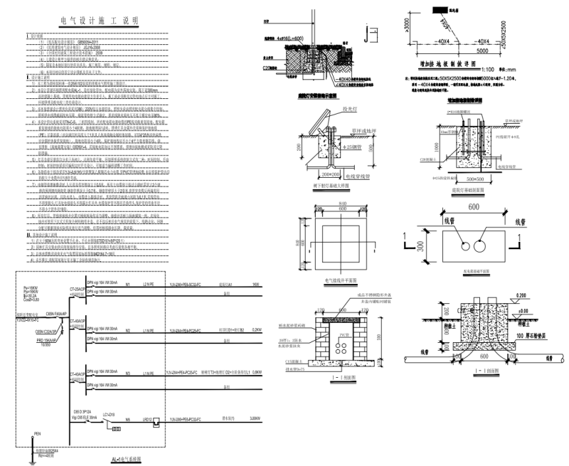
目录:物料标注平面图、索引标注平面图、尺寸平面图、竖向标注平面图、网格平面图、排水布置平面图、灯具布置平面图、通用详图、水景喷泉详图、铝合金大门详图、围墙标准段详图、景墙详图。
新中式风格别墅花园 景观施工图 设计 标高平面图.png
新中式风格别墅花园 景观施工图 设计 物料标注平面图.png
新中式风格别墅花园景观施工图设计 尺寸标注平面图.png
新中式风格别墅花园景观施工图设计 灯光布置图.png
新中式风格别墅花园景观施工图设计 地被植物配置图.png
新中式风格别墅花园景观施工图设计 亮化设计说明.png
新中式风格别墅花园景观施工图设计 排水分管道布置平面图.png
新中式风格别墅花园景观施工图设计 排水主管道布置平面图.png
新中式风格别墅花园景观施工图设计 喷灌系统布置图.png
新中式风格别墅花园景观施工图设计 铺装详图设计.png
新中式风格别墅花园景观施工图设计 铺装详图设计1.png
新中式风格别墅花园景观施工图设计 铺装详图设计3.png
新中式风格别墅花园景观施工图设计 乔木配置图.png
新中式风格别墅花园景观施工图设计 设计说明.png
设计说明1.png
新中式风格别墅花园景观施工图设计 网格放线图.png
新中式风格别墅花园景观施工图设计 标高平面图
新中式风格别墅花园景观施工图设计 标高平面图
新中式风格别墅花园景观施工图设计 物料标注平面图
新中式风格别墅花园景观施工图设计 物料标注平面图
新中式风格别墅花园景观施工图设计尺寸标注平面图
新中式风格别墅花园景观施工图设计尺寸标注平面图
新中式风格别墅花园景观施工图设计灯光布置图
新中式风格别墅花园景观施工图设计灯光布置图
新中式风格别墅花园景观施工图设计地被植物配置图
新中式风格别墅花园景观施工图设计地被植物配置图
新中式风格别墅花园景观施工图设计亮化设计说明
新中式风格别墅花园景观施工图设计亮化设计说明
新中式风格别墅花园景观施工图设计排水分管道布置平面图
新中式风格别墅花园景观施工图设计排水分管道布置平面图
新中式风格别墅花园景观施工图设计排水主管道布置平面图
新中式风格别墅花园景观施工图设计排水主管道布置平面图
新中式风格别墅花园景观施工图设计喷灌系统布置图
新中式风格别墅花园景观施工图设计喷灌系统布置图
新中式风格别墅花园景观施工图设计铺装详图设计
新中式风格别墅花园景观施工图设计铺装详图设计
新中式风格别墅花园景观施工图设计铺装详图设计1
新中式风格别墅花园景观施工图设计铺装详图设计1
新中式风格别墅花园景观施工图设计铺装详图设计3
新中式风格别墅花园景观施工图设计铺装详图设计3
新中式风格别墅花园景观施工图设计乔木配置图
新中式风格别墅花园景观施工图设计乔木配置图
新中式风格别墅花园景观施工图设计设计说明
新中式风格别墅花园景观施工图设计设计说明
设计说明1
设计说明1
新中式风格别墅花园景观施工图设计网格放线图
新中式风格别墅花园景观施工图设计网格放线图
以上是部分图纸截图,有些图框没有放大后再截图,可能截图里不清晰或者看不到内容,您可以在下载后查看具体内容

附件2099pan1cdc1cfdd2sw1c2ef.rar

119.87 MB

下载  售价: 100 积分    赚积分

新中式风格别墅花园相关帖子

回复

使用道具 举报

您需要登录后才可以回帖 登录 | 立即注册

本版积分规则

QQ|联系我们|豆豆网 ( 苏ICP备20004746号-1 )

GMT+8, 2025-12-28 05:55 , Processed in 0.014907 second(s), 27 queries .

本站所有内容均由网友自主分享,如有侵权内容或者违法行为,请及时联系站长删除,本站将根据实际情况进行积分奖励!请查看:免责声明

快速回复 返回顶部 返回列表