豆豆网

 找回密码
 立即注册

QQ登录

只需一步,快速开始

查看: 1107|回复: 0

双层厂房施工方案图纸CAD平面图

[复制链接]

0

主题

0

帖子

964

积分

超级版主

Rank: 8Rank: 8

积分
964
发表于 2021-12-3 22:29:56 | 显示全部楼层 |阅读模式

该帖子包含附件可供参考学习和下载,您可以 搜索 更多您想要的资源


  • 建筑特征:多跨
  • 结构型式:排架结构
  • 建筑高度类型:多层建筑
  • 钢筋混凝土结构:排架
  • 图纸设计深度:施工图
  • 项目所在地:贵州
  • 图纸设计风格:现代风格
  • 图纸设计格式:CAD2000
  • 参考图纸:30张
  • 设计年代:近代

[贵州]双层厂房施工图CAD2020

内容包含:
一、建筑平面图二、建筑立面图三、建筑剖面图四、建筑详图 五、建筑设计说明六、建筑节能设计说明七、门窗表八、做法一览表
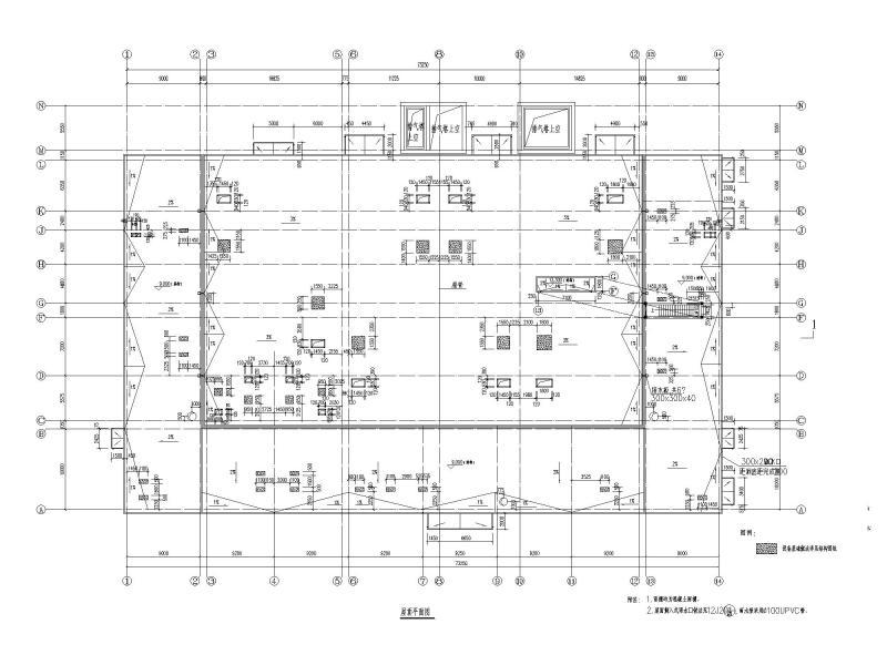
厂房立面.jpg
一层平面图.jpg
二层平面图.jpg
屋顶平面图.jpg
厂房立面1.jpg
厂房立面2.jpg
厂房立面3.jpg
剖面图.jpg
第 1 张图
第 1 张图
第 2 张图
第 2 张图
第 3 张图
第 3 张图
第 4 张图
第 4 张图
第 5 张图
第 5 张图
第 6 张图
第 6 张图
以上是部分图纸截图,有些图框没有放大后再截图,可能截图里不清晰或者看不到内容,您可以在下载后查看具体内容

附件2099v11cdf0fcdf0wcf1c10.rar

23.69 MB

下载  售价: 100 积分    赚积分

相关帖子

回复

使用道具 举报

您需要登录后才可以回帖 登录 | 立即注册

本版积分规则

QQ|联系我们|豆豆网 ( 苏ICP备20004746号-1 )

GMT+8, 2025-12-18 21:57 , Processed in 0.028971 second(s), 27 queries .

本站所有内容均由网友自主分享,如有侵权内容或者违法行为,请及时联系站长删除,本站将根据实际情况进行积分奖励!请查看:免责声明

快速回复 返回顶部 返回列表