豆豆网

 找回密码
 立即注册

QQ登录

只需一步,快速开始

查看: 562|回复: 0

一份7层独立基础框架综合楼结构CAD施工图纸

[复制链接]

0

主题

0

帖子

1596

积分

超级版主

Rank: 8Rank: 8

积分
1596
发表于 2020-2-24 19:33:31 | 显示全部楼层 |阅读模式

该帖子包含附件可供参考学习和下载,您可以 搜索 更多您想要的资源


  • 建筑类别:办公
  • 建筑高度类型:多层建筑
  • 建筑地上层数:7层
  • 图纸设计深度:施工图
  • 民用建筑设计使用年限:50年
  • 建筑设计结构形式:钢筋混凝土结构
  • 钢筋混凝土结构:框架
  • 基础形式 :独立基础
  • 结构安全等级:二级
  • 参考图纸:11张

附件详情

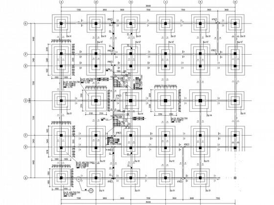
基础平面布置图、基础详图、地梁配筋详图、柱 平面布置图 、梁平法施工图、板平法施工图、屋顶女儿墙配筋图、楼板温度加强筋示意图、楼梯节点共11张图纸。


梁平法施工图

基础平面布置图

板平法施工图

第 1 张图
第 1 张图
第 2 张图
第 2 张图
第 3 张图
第 3 张图
第 4 张图
第 4 张图
以上是部分图纸截图,有些图框没有放大后再截图,可能截图里不清晰或者看不到内容,您可以在下载后查看具体内容

温馨提示:该资料由网友于2020-2-24 19:33:31上传分享,您可以下载该资料进行学习和参考,如有侵权内容或者违法行为,请及时联系站长删除,如有疑问,您可以在建筑施工专区发帖交流相关知识。

附件2099v11edfccccff0wdee1sc2s.zip

1.05 MB

下载  售价: 100 积分    赚积分

相关帖子

回复

使用道具 举报

您需要登录后才可以回帖 登录 | 立即注册

本版积分规则

QQ|联系我们|豆豆网 ( 苏ICP备20004746号-1 )

GMT+8, 2025-12-27 07:39 , Processed in 0.014791 second(s), 27 queries .

本站所有内容均由网友自主分享,如有侵权内容或者违法行为,请及时联系站长删除,本站将根据实际情况进行积分奖励!请查看:免责声明

快速回复 返回顶部 返回列表