豆豆网

 找回密码
 立即注册

QQ登录

只需一步,快速开始

查看: 1927|回复: 0

12层住宅楼建筑dwg格式CAD图纸

[复制链接]

0

主题

0

帖子

1596

积分

超级版主

Rank: 8Rank: 8

积分
1596
发表于 2020-1-25 20:54:50 | 显示全部楼层 |阅读模式

该帖子包含附件可供参考学习和下载,您可以 搜索 更多您想要的资源


附件详情

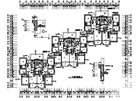
山东某十二层住宅建筑方案图
该项目为二类高层民用建筑,总建筑面积9203.82平方米,建筑总高度36.03米,十二层框架结构,耐火等级为二级.,屋面防水等级为二级. 安全等级为三级.使用年限为50年
这份参考资料包括资料目录、图纸说明、各层建筑平面、立面、剖面图、墙身大样、檐口作法等,共13张图纸
设计功能包括:厨房、客厅、卧室等。

第 1 张图
第 1 张图
第 2 张图
第 2 张图
第 3 张图
第 3 张图
第 4 张图
第 4 张图
以上是部分图纸截图,有些图框没有放大后再截图,可能截图里不清晰或者看不到内容,您可以在下载后查看具体内容

温馨提示:该资料由网友于2020-1-25 20:54:50上传分享,您可以下载该资料进行学习和参考,如有侵权内容或者违法行为,请及时联系站长删除,如有疑问,您可以在居住建筑专区发帖交流相关知识。

附件2099v11ed1wscwsdd0fces0f2f.rar

1.44 MB

下载  售价: 100 积分    赚积分

相关帖子

回复

使用道具 举报

您需要登录后才可以回帖 登录 | 立即注册

本版积分规则

QQ|联系我们|豆豆网 ( 苏ICP备20004746号-1 )

GMT+8, 2025-12-18 02:34 , Processed in 0.016250 second(s), 27 queries .

本站所有内容均由网友自主分享,如有侵权内容或者违法行为,请及时联系站长删除,本站将根据实际情况进行积分奖励!请查看:免责声明

快速回复 返回顶部 返回列表