豆豆网

 找回密码
 立即注册

QQ登录

只需一步,快速开始

查看: 494|回复: 0

一份38米跨度大开间单层厂房钢结构CAD施工图纸(平面布置图)

[复制链接]

0

主题

0

帖子

1322

积分

超级版主

Rank: 8Rank: 8

积分
1322
发表于 2020-2-25 11:20:40 | 显示全部楼层 |阅读模式

该帖子包含附件可供参考学习和下载,您可以 搜索 更多您想要的资源


  • 建筑类别:其他
  • 厂房建筑高度类型:单层厂房
  • 建筑地上层数:1层
  • 图纸设计深度:施工图
  • 民用建筑设计使用年限:50年
  • 建筑设计结构形式:钢结构
  • 钢结构:门式刚架
  • 参考图纸:10张

附件详情

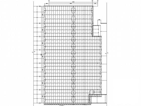
该项目是38米跨钢结构项目,包括:预埋螺栓平面布置图,柱网平面布置图,钢屋架上弦结构平面布置图,钢屋架下弦结构平面布置图,屋面檩条布置图,屋面 平面布置图 ,刚架剖面图等共计10张图。

钢屋架上弦结构平面布置图

屋面檩条布置图

预埋螺栓平面布置图

第 1 张图
第 1 张图
第 2 张图
第 2 张图
第 3 张图
第 3 张图
第 4 张图
第 4 张图
以上是部分图纸截图,有些图框没有放大后再截图,可能截图里不清晰或者看不到内容,您可以在下载后查看具体内容

温馨提示:该资料由网友于2020-2-25 11:20:40上传分享,您可以下载该资料进行学习和参考,如有侵权内容或者违法行为,请及时联系站长删除,如有疑问,您可以在建筑施工专区发帖交流相关知识。

附件2099v11edf21csfce2fcd0220c.rar

908.51 KB

下载  售价: 100 积分    赚积分

相关帖子

回复

使用道具 举报

您需要登录后才可以回帖 登录 | 立即注册

本版积分规则

QQ|联系我们|豆豆网 ( 苏ICP备20004746号-1 )

GMT+8, 2025-12-28 01:58 , Processed in 0.018116 second(s), 28 queries .

本站所有内容均由网友自主分享,如有侵权内容或者违法行为,请及时联系站长删除,本站将根据实际情况进行积分奖励!请查看:免责声明

快速回复 返回顶部 返回列表