豆豆网

 找回密码
 立即注册

QQ登录

只需一步,快速开始

查看: 2301|回复: 0

一份住宅楼地下1层框架结构地下室结构CAD图纸

[复制链接]

0

主题

0

帖子

1579

积分

超级版主

Rank: 8Rank: 8

积分
1579
发表于 2020-2-25 16:12:13 | 显示全部楼层 |阅读模式

该帖子包含附件可供参考学习和下载,您可以 搜索 更多您想要的资源


  • 建筑类别:住宅
  • 建筑高度类型:高层建筑
  • 建筑地上层数:16层
  • 建筑地下层数:1层
  • 图纸设计深度:施工图
  • 民用建筑设计使用年限:50年
  • 建筑设计结构形式:钢筋混凝土结构
  • 钢筋混凝土结构:框架
  • 结构安全等级:二级
  • 抗震设防烈度:7度抗震
  • 地下室功能:人防
  • 参考图纸:13张
  • 设计年代:近代

附件详情

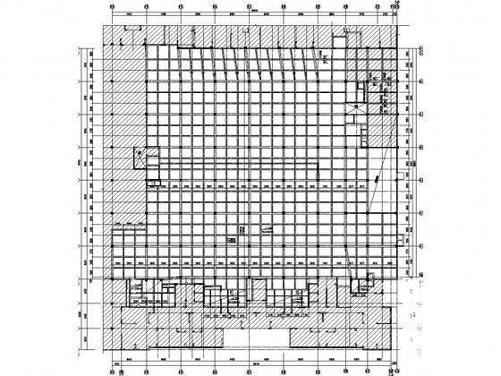
该项目是郑州市某住宅楼地下室项目,地上部分为剪力墙结构16层,地下为1层框架结构地下室,抗震设防烈度为7度,核六级、常六级,人防级别为甲类,包括:结构设计总说明,人防地下室基础配筋图,基础详图,人防地下室墙体配筋图,门框墙详图,门框墙详图,人防地下室柱配筋图,人防地下室顶板纵向梁配筋图,人防地下室顶板配筋图,楼梯配筋图,坡道配筋图等共计13张图。
2月。

人防地下室顶板横向梁配筋图

人防地下室顶板配筋图

门框墙详图

人防地下室柱配筋图

人防地下室墙体配筋图

第 1 张图
第 1 张图
第 2 张图
第 2 张图
第 3 张图
第 3 张图
第 4 张图
第 4 张图
第 5 张图
第 5 张图
第 6 张图
第 6 张图
以上是部分图纸截图,有些图框没有放大后再截图,可能截图里不清晰或者看不到内容,您可以在下载后查看具体内容

温馨提示:该资料由网友于2020-2-25 16:12:13上传分享,您可以下载该资料进行学习和参考,如有侵权内容或者违法行为,请及时联系站长删除,如有疑问,您可以在居住建筑专区发帖交流相关知识。

附件2099v11edfccecwww10fesdcss.rar

5.12 MB

下载  售价: 100 积分    赚积分

相关帖子

回复

使用道具 举报

您需要登录后才可以回帖 登录 | 立即注册

本版积分规则

QQ|联系我们|豆豆网 ( 苏ICP备20004746号-1 )

GMT+8, 2025-12-28 01:12 , Processed in 0.025224 second(s), 28 queries .

本站所有内容均由网友自主分享,如有侵权内容或者违法行为,请及时联系站长删除,本站将根据实际情况进行积分奖励!请查看:免责声明

快速回复 返回顶部 返回列表