豆豆网

 找回密码
 立即注册

QQ登录

只需一步,快速开始

查看: 1953|回复: 0

一份上16层住宅楼采暖系统设计CAD施工图纸(非对称户型)

[复制链接]

0

主题

0

帖子

1322

积分

超级版主

Rank: 8Rank: 8

积分
1322
发表于 2020-2-26 10:03:00 | 显示全部楼层 |阅读模式

该帖子包含附件可供参考学习和下载,您可以 搜索 更多您想要的资源


  • 附件设计说明:有
  • 建筑类别:住宅
  • 图纸设计深度:施工图
  • 参考图纸:11张
  • 设计内容:采暖

附件详情

一、项目概要:
项目为一住宅楼,地上16层....
二、采暖系统:
1.本建筑采暖方式采用集中供暖分户热计量,每个单元为一独立系统。
2.回水管道敷设在位于楼梯间的管井内,系统形式为异程式。
3.住宅部分采暖设计热负荷指标:38W/m2...
三、通风系统:
1.楼顶机房通风,楼顶机房通风采用低噪音新型壁式轴流风机。
2.地下室及楼梯间采用自然排烟;合用前室采用机械加压送风,送风量:30300m/h...

图纸共11张。

地下室采暖管道 平面布置图

采暖管井详图

主立管图

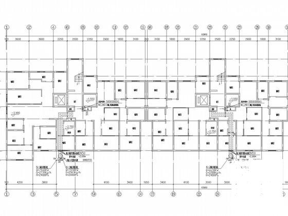
住宅楼户型采暖 - 1
第 1 张图
住宅楼户型采暖 - 2
第 2 张图
住宅楼户型采暖 - 3
第 3 张图
住宅楼户型采暖 - 4
第 4 张图
以上是部分图纸截图,有些图框没有放大后再截图,可能截图里不清晰或者看不到内容,您可以在下载后查看具体内容

温馨提示:该资料由网友于2020-2-26 10:03:00上传分享,您可以下载该资料进行学习和参考,如有侵权内容或者违法行为,请及时联系站长删除,如有疑问,您可以在居住建筑专区发帖交流相关知识。

附件2099v11ede2s2c0f2c20f0ef2s.rar

1018.82 KB

下载  售价: 100 积分    赚积分

住宅楼户型采暖相关帖子

回复

使用道具 举报

您需要登录后才可以回帖 登录 | 立即注册

本版积分规则

QQ|联系我们|豆豆网 ( 苏ICP备20004746号-1 )

GMT+8, 2025-12-22 06:40 , Processed in 0.017984 second(s), 27 queries .

本站所有内容均由网友自主分享,如有侵权内容或者违法行为,请及时联系站长删除,本站将根据实际情况进行积分奖励!请查看:免责声明

快速回复 返回顶部 返回列表