豆豆网

 找回密码
 立即注册

QQ登录

只需一步,快速开始

查看: 519|回复: 0

橡胶坝CAD施工图纸(总体设计图)

[复制链接]

0

主题

0

帖子

1516

积分

超级版主

Rank: 8Rank: 8

积分
1516
发表于 2020-2-26 11:42:51 | 显示全部楼层 |阅读模式

该帖子包含附件可供参考学习和下载,您可以 搜索 更多您想要的资源


附件详情

[山东]橡胶坝全套施工图纸,其中包括:
橡胶坝总体设计图
纵剖视图、纵断面图
止水、中墩结构图
橡胶坝边底板配筋图
橡胶坝中底板配筋图
管路布置图(一)
管路布置图(二)
水帽大样图
坝袋锚槽图
泵房楼梯布置图及泵房底板配筋图
泵房侧墙配筋图
泵房楼层设计图
泵房楼层底板配筋图
人行便桥( 1/ 2)
人行便桥( 2/ 2)等
其中还包括:
店子坝边闸底板(左半梁)弯矩计算表
店子坝稳定表
店子坝中墩应力表
店子橡胶坝稳定表




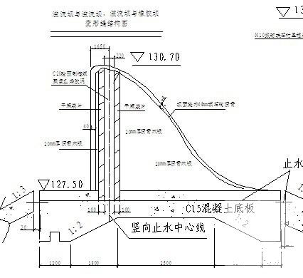
橡胶坝设计图 - 1
第 1 张图
橡胶坝设计图 - 2
第 2 张图
橡胶坝设计图 - 3
第 3 张图
橡胶坝设计图 - 4
第 4 张图
以上是部分图纸截图,有些图框没有放大后再截图,可能截图里不清晰或者看不到内容,您可以在下载后查看具体内容

温馨提示:该资料由网友于2020-2-26 11:42:51上传分享,您可以下载该资料进行学习和参考,如有侵权内容或者违法行为,请及时联系站长删除,如有疑问,您可以在建筑施工专区发帖交流相关知识。

附件2099v11edc0w21022we001cf0d.rar

894.57 KB

下载  售价: 100 积分    赚积分

橡胶坝设计图相关帖子

回复

使用道具 举报

您需要登录后才可以回帖 登录 | 立即注册

本版积分规则

QQ|联系我们|豆豆网 ( 苏ICP备20004746号-1 )

GMT+8, 2025-12-28 00:50 , Processed in 0.015486 second(s), 27 queries .

本站所有内容均由网友自主分享,如有侵权内容或者违法行为,请及时联系站长删除,本站将根据实际情况进行积分奖励!请查看:免责声明

快速回复 返回顶部 返回列表