豆豆网

 找回密码
 立即注册

QQ登录

只需一步,快速开始

查看: 1549|回复: 0

一份工业生产车间给排水管道CAD施工图纸(纯水系统冷却水系统)(压缩空气管)

[复制链接]

0

主题

0

帖子

1596

积分

超级版主

Rank: 8Rank: 8

积分
1596
发表于 2020-2-27 10:44:48 | 显示全部楼层 |阅读模式

该帖子包含附件可供参考学习和下载,您可以 搜索 更多您想要的资源


附件详情

  • 资料目录
  • 设计说明
  • 设备参数表
  • 详图
  • 一层压缩空气管道布置平面图1~11
  • 一层压缩空气管道布置平面图11~24
  • 二层压缩空气管道布置平面图1~11
  • 二层压缩空气管道布置平面图11~24
  • 三层压缩空气管道布置平面图11~24
  • 一层压缩空气管道系统图
  • 二、三层压缩空气管道系统图
  • 一层除尘管道布置平面图1~11
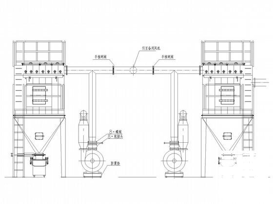
  • 集尘机室设备布置平面图
  • 集尘机室剖面图
  • 集尘机室设备尺寸图
  • 除尘管道系统图
  • 二层氮气管道布置平面图1~11
  • 二层氮气管道布置平面图11~24
  • 一层工艺冷却水平面图1~11
  • 一层工艺冷却水平面图11~24
  • 一层纯水管道布置平面图11~24
  • 二层纯水管道布置平面图11~24
  • 二层纯水排水管道布置平面图11~24
  • 纯水、预处理水给水系统图
  • 冷却水系统图
  • 纯水、预处理水排水系统图
  • 氮气管道系统图

附件详情

项目概要:该项目位于江苏,是一工业厂房车间管道给排水项目,建筑层数为地上三层,部分二层;
该资料由生产厂房压缩空气管道、氮气管道、除尘管道、工艺冷却水管道、纯水管道、预处理水管道分配系统等组成。
共计20张图纸;


一层工艺冷却水平面图

集尘机室剖面图

水管保温详图

水管吊架详图

工艺管道系统图

工业管道施工图 - 1
第 1 张图
工业管道施工图 - 2
第 2 张图
工业管道施工图 - 3
第 3 张图
工业管道施工图 - 4
第 4 张图
工业管道施工图 - 5
第 5 张图
工业管道施工图 - 6
第 6 张图
以上是部分图纸截图,有些图框没有放大后再截图,可能截图里不清晰或者看不到内容,您可以在下载后查看具体内容

温馨提示:该资料由网友于2020-2-27 10:44:48上传分享,您可以下载该资料进行学习和参考,如有侵权内容或者违法行为,请及时联系站长删除,如有疑问,您可以在给水排水专区发帖交流相关知识。

附件2099v11edc0w00s2fwsef201cs.rar

5.04 MB

售价: 100 积分    赚积分

工业管道施工图相关帖子

回复

使用道具 举报

您需要登录后才可以回帖 登录 | 立即注册

本版积分规则

QQ|联系我们|豆豆网 ( 苏ICP备20004746号-1 )

GMT+8, 2025-12-28 04:54 , Processed in 0.017229 second(s), 28 queries .

本站所有内容均由网友自主分享,如有侵权内容或者违法行为,请及时联系站长删除,本站将根据实际情况进行积分奖励!请查看:免责声明

快速回复 返回顶部 返回列表