豆豆网

 找回密码
 立即注册

QQ登录

只需一步,快速开始

查看: 2420|回复: 0

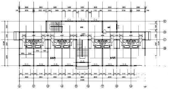
[卫生间详图]4层老年公寓建筑方案设计CAD图纸

[复制链接]

0

主题

0

帖子

1597

积分

超级版主

Rank: 8Rank: 8

积分
1597
发表于 2020-1-26 20:41:49 | 显示全部楼层 |阅读模式

该帖子包含附件可供参考学习和下载,您可以 搜索 更多您想要的资源


附件详情

该资料为某四层老年公寓建筑方案图( 毕业设计
工程建筑面积约为:1550平方米、建筑设计结构形式为:砖混结构、层数为: 4层、高度为: 16.8米
这份参考资料包括图纸说明、工程作法各层建筑平面、立面、剖面图、卫生间详图、楼梯间详图等,共9张图纸
设计功能包括:

老年公寓方案设计 - 1
第 1 张图
老年公寓方案设计 - 2
第 2 张图
老年公寓方案设计 - 3
第 3 张图
老年公寓方案设计 - 4
第 4 张图
以上是部分图纸截图,有些图框没有放大后再截图,可能截图里不清晰或者看不到内容,您可以在下载后查看具体内容

温馨提示:该资料由网友于2020-1-26 20:41:49上传分享,您可以下载该资料进行学习和参考,如有侵权内容或者违法行为,请及时联系站长删除,如有疑问,您可以在方案设计专区发帖交流相关知识。

附件2099v11ed1ws2cdwc10seccf0d.rar

383.27 KB

售价: 100 积分    赚积分

老年公寓方案设计相关帖子

回复

使用道具 举报

您需要登录后才可以回帖 登录 | 立即注册

本版积分规则

QQ|联系我们|豆豆网 ( 苏ICP备20004746号-1 )

GMT+8, 2025-12-31 12:56 , Processed in 0.016864 second(s), 28 queries .

本站所有内容均由网友自主分享,如有侵权内容或者违法行为,请及时联系站长删除,本站将根据实际情况进行积分奖励!请查看:免责声明

快速回复 返回顶部 返回列表