豆豆网

 找回密码
 立即注册

QQ登录

只需一步,快速开始

查看: 1777|回复: 0

会所室内游泳池给排水设计CAD施工图纸(ppr热水管)

[复制链接]

0

主题

0

帖子

1246

积分

超级版主

Rank: 8Rank: 8

积分
1246
发表于 2020-3-1 15:32:41 | 显示全部楼层 |阅读模式

该帖子包含附件可供参考学习和下载,您可以 搜索 更多您想要的资源


附件详情

说明:
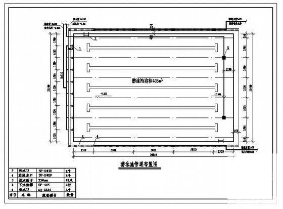
1.本游泳池水处理系统采用U-PVC管材,压力为了0.6MPa。
2.机房电源要求: 三相五线,功率20KW,接至配电箱处。
3.自来水引入机房,管径DN80,泳池注水及补水专用。
4.标高要求:机房地面标高要求不高于泳池水平面标高,能再低点更好。
5.锅炉加热系统:二次系统管道均为PPR热水管。
6.锅炉二次侧泳池温度泳池设备自控。
7.淋浴用水加压泵,由甲方负责。


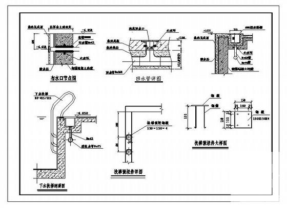
室内游泳池设计图纸 - 1
第 1 张图
室内游泳池设计图纸 - 2
第 2 张图
室内游泳池设计图纸 - 3
第 3 张图
室内游泳池设计图纸 - 4
第 4 张图
以上是部分图纸截图,有些图框没有放大后再截图,可能截图里不清晰或者看不到内容,您可以在下载后查看具体内容

温馨提示:该资料由网友于2020-3-1 15:32:41上传分享,您可以下载该资料进行学习和参考,如有侵权内容或者违法行为,请及时联系站长删除,如有疑问,您可以在给水排水专区发帖交流相关知识。

附件2099v11edc0ewedcsffd1d2c2e.rar

295.28 KB

下载  售价: 100 积分    赚积分

室内游泳池设计图纸相关帖子

回复

使用道具 举报

您需要登录后才可以回帖 登录 | 立即注册

本版积分规则

QQ|联系我们|豆豆网 ( 苏ICP备20004746号-1 )

GMT+8, 2025-12-29 04:59 , Processed in 0.014704 second(s), 28 queries .

本站所有内容均由网友自主分享,如有侵权内容或者违法行为,请及时联系站长删除,本站将根据实际情况进行积分奖励!请查看:免责声明

快速回复 返回顶部 返回列表