豆豆网

 找回密码
 立即注册

QQ登录

只需一步,快速开始

查看: 730|回复: 0

一份单层混合结构工业辅助用房结构CAD施工图纸(6度抗震)(后浇带做法)

[复制链接]

0

主题

0

帖子

1352

积分

超级版主

Rank: 8Rank: 8

积分
1352
发表于 2020-3-4 11:51:20 | 显示全部楼层 |阅读模式

该帖子包含附件可供参考学习和下载,您可以 搜索 更多您想要的资源


  • 建筑类别:工业建筑

  • 建筑高度类型:单层建筑

  • 厂房建筑高度类型:单层厂房

  • 图纸设计深度:施工图

  • 民用建筑设计使用年限:50年

  • 建筑设计结构形式:框架结构

  • 基础形式 :条形基础, 独立基础

  • 结构安全等级:二级

  • 地基基础设计等级:丙级

  • 抗震设防烈度:6度抗震

  • 参考图纸:4张

  • 设计年代:近代

附件详情

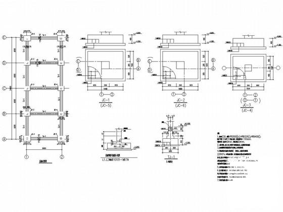
单层框架结构工业辅助用房项目,包括: 结构设计说明 、基础布置平面图、基础大样、檩条轻屋面,梁柱配筋图等共计4张图,独立基础,条形基础,9月。

柱、梁施工详图

檩条布置图

梁后浇带做法

后浇带做法 - 1
第 1 张图
后浇带做法 - 2
第 2 张图
后浇带做法 - 3
第 3 张图
后浇带做法 - 4
第 4 张图
以上是部分图纸截图,有些图框没有放大后再截图,可能截图里不清晰或者看不到内容,您可以在下载后查看具体内容

温馨提示:该资料由网友于2020-3-4 11:51:20上传分享,您可以下载该资料进行学习和参考,如有侵权内容或者违法行为,请及时联系站长删除,如有疑问,您可以在建筑施工专区发帖交流相关知识。

附件2099v11edfwsc00f2scd2edccc.zip

353.52 KB

下载  售价: 100 积分    赚积分

后浇带做法相关帖子

回复

使用道具 举报

您需要登录后才可以回帖 登录 | 立即注册

本版积分规则

QQ|联系我们|豆豆网 ( 苏ICP备20004746号-1 )

GMT+8, 2025-12-30 04:48 , Processed in 0.015717 second(s), 27 queries .

本站所有内容均由网友自主分享,如有侵权内容或者违法行为,请及时联系站长删除,本站将根据实际情况进行积分奖励!请查看:免责声明

快速回复 返回顶部 返回列表