豆豆网

 找回密码
 立即注册

QQ登录

只需一步,快速开始

查看: 2689|回复: 0

[CAD]叠拼别墅户型平面图纸(126、139平方米、板式)

[复制链接]

0

主题

0

帖子

1085

积分

超级版主

Rank: 8Rank: 8

积分
1085
发表于 2020-3-4 19:56:39 | 显示全部楼层 |阅读模式

该帖子包含附件可供参考学习和下载,您可以 搜索 更多您想要的资源


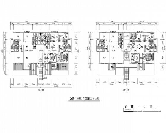
  • 一梯户数:2户
  • 板式、塔式:板式
  • 户型大小:大户型

附件详情

总开间x进深:24x12.9米
户型:三房二厅二卫(139、126平方米)

资料包含:户型平面图
参考资料:1张CAD


叠拼别墅平面 - 1
第 1 张图
叠拼别墅平面 - 2
第 2 张图
以上是部分图纸截图,有些图框没有放大后再截图,可能截图里不清晰或者看不到内容,您可以在下载后查看具体内容

温馨提示:该资料由网友于2020-3-4 19:56:39上传分享,您可以下载该资料进行学习和参考,如有侵权内容或者违法行为,请及时联系站长删除,如有疑问,您可以在别墅建筑专区发帖交流相关知识。

附件2099v11eddcc0efs2cdc0ss0ff.rar

318.51 KB

下载  售价: 100 积分    赚积分

叠拼别墅平面相关帖子

回复

使用道具 举报

您需要登录后才可以回帖 登录 | 立即注册

本版积分规则

QQ|联系我们|豆豆网 ( 苏ICP备20004746号-1 )

GMT+8, 2025-12-28 00:54 , Processed in 0.018175 second(s), 28 queries .

本站所有内容均由网友自主分享,如有侵权内容或者违法行为,请及时联系站长删除,本站将根据实际情况进行积分奖励!请查看:免责声明

快速回复 返回顶部 返回列表