豆豆网

 找回密码
 立即注册

QQ登录

只需一步,快速开始

查看: 509|回复: 0

一份门式刚架结构电梯井道结构CAD施工图纸

[复制链接]

0

主题

0

帖子

1384

积分

超级版主

Rank: 8Rank: 8

积分
1384
发表于 2020-3-5 16:39:24 | 显示全部楼层 |阅读模式

该帖子包含附件可供参考学习和下载,您可以 搜索 更多您想要的资源


  • 建筑类别:工业建筑
  • 图纸设计深度:施工图
  • 民用建筑设计使用年限:50年
  • 建筑设计结构形式:钢结构
  • 钢结构:门式刚架
  • 参考图纸:4张
  • 设计年代:近代

附件详情

水泥企业的窑尾电梯大都为外跨钢结构,电梯井架详图

电梯与砼楼面连接详图

电梯导轨连接件安装详图

电梯导轨连接件安装详图

电梯与钢楼面连接详图

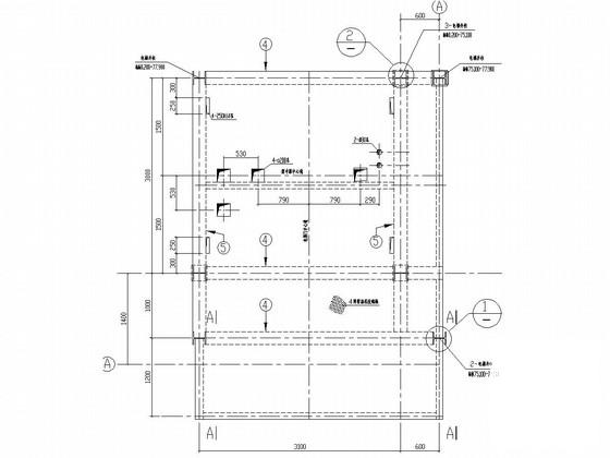
电梯井道结构施工图 - 1
第 1 张图
电梯井道结构施工图 - 2
第 2 张图
电梯井道结构施工图 - 3
第 3 张图
电梯井道结构施工图 - 4
第 4 张图
以上是部分图纸截图,有些图框没有放大后再截图,可能截图里不清晰或者看不到内容,您可以在下载后查看具体内容

温馨提示:该资料由网友于2020-3-5 16:39:24上传分享,您可以下载该资料进行学习和参考,如有侵权内容或者违法行为,请及时联系站长删除,如有疑问,您可以在建筑施工专区发帖交流相关知识。

附件2099v11edf2dew2cccs00ccf00.rar

336.87 KB

下载  售价: 100 积分    赚积分

电梯井道结构施工图相关帖子

回复

使用道具 举报

您需要登录后才可以回帖 登录 | 立即注册

本版积分规则

QQ|联系我们|豆豆网 ( 苏ICP备20004746号-1 )

GMT+8, 2025-12-28 19:44 , Processed in 0.014807 second(s), 28 queries .

本站所有内容均由网友自主分享,如有侵权内容或者违法行为,请及时联系站长删除,本站将根据实际情况进行积分奖励!请查看:免责声明

快速回复 返回顶部 返回列表