豆豆网

 找回密码
 立即注册

QQ登录

只需一步,快速开始

查看: 532|回复: 0

一份砖混结构校园幼儿园结构CAD施工图纸(建筑图纸)

[复制链接]

0

主题

0

帖子

1736

积分

超级版主

Rank: 8Rank: 8

积分
1736
发表于 2020-3-6 10:05:16 | 显示全部楼层 |阅读模式

该帖子包含附件可供参考学习和下载,您可以 搜索 更多您想要的资源


  • 建筑类别:教育
  • 建筑高度类型:单层建筑
  • 建筑地上层数:1层
  • 图纸设计深度:施工图
  • 民用建筑设计使用年限:50年
  • 建筑设计结构形式:砌体结构
  • 基础形式 :其它基础
  • 结构安全等级:二级
  • 地基基础设计等级:丙级
  • 抗震设防烈度:8度抗震
  • 参考图纸:17张
  • 设计年代:近代

附件详情

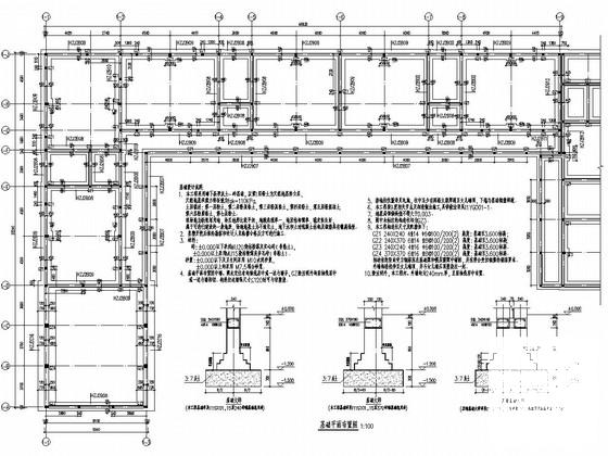
该项目是校园幼儿园项目,地上一层,层高3.6m,分为3个区,总建筑设计面积:1481.09平方米,砖混结构,抗震设防烈度为8度。采用墙下条形灰土-砖基础。
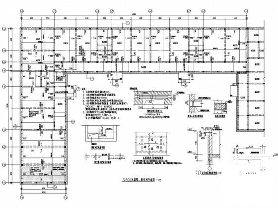
结构专业该资料包含:校园幼儿园一、二、三区,3.600标高梁、板结构平面图,圈梁过梁详图等7张图。
建筑专业该资料包含:建筑设计说明,各区平面图,屋顶平面图,卫生间详图,门窗大样详图,厨房布置详图,入口雨篷剖面详图等共计10张图。
分享投稿时间:近几年5月。

校园幼儿园一区基础图

一区3.600标高梁、板结构平面图

三区一层平面图

卫生间详图

二区3.600标高梁、板结构平面图

幼儿园建筑图 - 1
第 1 张图
幼儿园建筑图 - 2
第 2 张图
幼儿园建筑图 - 3
第 3 张图
幼儿园建筑图 - 4
第 4 张图
幼儿园建筑图 - 5
第 5 张图
幼儿园建筑图 - 6
第 6 张图
以上是部分图纸截图,有些图框没有放大后再截图,可能截图里不清晰或者看不到内容,您可以在下载后查看具体内容

温馨提示:该资料由网友于2020-3-6 10:05:16上传分享,您可以下载该资料进行学习和参考,如有侵权内容或者违法行为,请及时联系站长删除,如有疑问,您可以在建筑施工专区发帖交流相关知识。

附件2099v11edfw1ce20fsce0cef11.rar

1.42 MB

下载  售价: 100 积分    赚积分

幼儿园建筑图相关帖子

回复

使用道具 举报

您需要登录后才可以回帖 登录 | 立即注册

本版积分规则

QQ|联系我们|豆豆网 ( 苏ICP备20004746号-1 )

GMT+8, 2025-12-17 06:00 , Processed in 0.031508 second(s), 27 queries .

本站所有内容均由网友自主分享,如有侵权内容或者违法行为,请及时联系站长删除,本站将根据实际情况进行积分奖励!请查看:免责声明

快速回复 返回顶部 返回列表