豆豆网

 找回密码
 立即注册

QQ登录

只需一步,快速开始

查看: 587|回复: 0

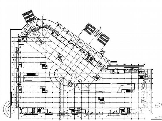
一份物流基地7层仓储大楼建筑施工CAD图纸

[复制链接]

0

主题

0

帖子

1389

积分

超级版主

Rank: 8Rank: 8

积分
1389
发表于 2020-3-6 20:11:31 | 显示全部楼层 |阅读模式

该帖子包含附件可供参考学习和下载,您可以 搜索 更多您想要的资源


  • 建筑高度类型:高层建筑
  • 图纸设计深度:施工图
  • 项目所在地:广东
  • 图纸设计格式:天正建筑CAD 7.0,CAD2000
  • 参考图纸:17张
  • 建筑设计面积:180000平方米
  • 建筑高度:39.6m
  • 建筑地上层数:7层
  • 设计效果图:无

附件详情

总建筑设计面积:18万平方米,
建筑层数:7层,
建筑高度:39.6米,
含建筑平面图、立面图、剖面图和 节点详图 ,共17张图纸

图5

图6

第 1 张图
第 1 张图
第 2 张图
第 2 张图
第 3 张图
第 3 张图
第 4 张图
第 4 张图
第 5 张图
第 5 张图
以上是部分图纸截图,有些图框没有放大后再截图,可能截图里不清晰或者看不到内容,您可以在下载后查看具体内容

温馨提示:该资料由网友于2020-3-6 20:11:31上传分享,您可以下载该资料进行学习和参考,如有侵权内容或者违法行为,请及时联系站长删除,如有疑问,您可以在建筑施工专区发帖交流相关知识。

附件2099v11eddd2c12w2f001d2sfd.rar

3.66 MB

下载  售价: 100 积分    赚积分

相关帖子

回复

使用道具 举报

您需要登录后才可以回帖 登录 | 立即注册

本版积分规则

QQ|联系我们|豆豆网 ( 苏ICP备20004746号-1 )

GMT+8, 2025-12-18 04:53 , Processed in 0.016571 second(s), 27 queries .

本站所有内容均由网友自主分享,如有侵权内容或者违法行为,请及时联系站长删除,本站将根据实际情况进行积分奖励!请查看:免责声明

快速回复 返回顶部 返回列表