豆豆网

 找回密码
 立即注册

QQ登录

只需一步,快速开始

查看: 542|回复: 0

一份32米跨门式刚架,独基厂房结构CAD施工图纸(7度抗震)

[复制链接]

0

主题

0

帖子

1736

积分

超级版主

Rank: 8Rank: 8

积分
1736
发表于 2020-3-10 15:15:22 | 显示全部楼层 |阅读模式

该帖子包含附件可供参考学习和下载,您可以 搜索 更多您想要的资源


  • 建筑类别:工业建筑
  • 厂房建筑高度类型:单层厂房
  • 图纸设计深度:施工图
  • 民用建筑设计使用年限:50年
  • 建筑设计结构形式:钢结构
  • 钢结构:门式刚架,轻钢结构
  • 基础形式 :独立基础
  • 结构安全等级:二级
  • 抗震设防烈度:7度抗震
  • 风压:0.70kN/平方米
  • 雪压:0.00kN/平方米
  • 参考图纸:16张

附件详情

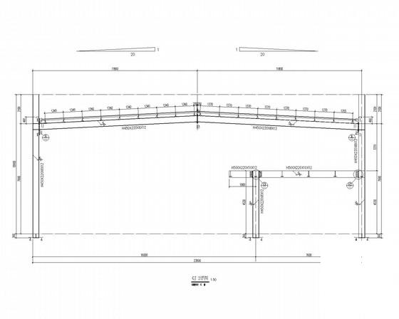
钢结构设计总说明、基础定位及配筋图、柱脚锚栓平面布置图、柱网平面布置图、结构布置图、楼承板布置图、屋面结构平面布置图、GJ详图、屋面檩条 平面布置图 、墙梁立面布置图、钢楼梯结构详图共16张图纸。


基础定位及配筋图

结构布置图

钢楼梯结构详图

屋面檩条平面布置图

屋面结构平面布置图

第 1 张图
第 1 张图
第 2 张图
第 2 张图
第 3 张图
第 3 张图
第 4 张图
第 4 张图
第 5 张图
第 5 张图
第 6 张图
第 6 张图
以上是部分图纸截图,有些图框没有放大后再截图,可能截图里不清晰或者看不到内容,您可以在下载后查看具体内容

温馨提示:该资料由网友于2020-3-10 15:15:22上传分享,您可以下载该资料进行学习和参考,如有侵权内容或者违法行为,请及时联系站长删除,如有疑问,您可以在建筑施工专区发帖交流相关知识。

附件2099v11edf210c1fcwwsd220cs.zip

841.91 KB

下载  售价: 100 积分    赚积分

相关帖子

回复

使用道具 举报

您需要登录后才可以回帖 登录 | 立即注册

本版积分规则

QQ|联系我们|豆豆网 ( 苏ICP备20004746号-1 )

GMT+8, 2025-12-18 03:29 , Processed in 0.014057 second(s), 27 queries .

本站所有内容均由网友自主分享,如有侵权内容或者违法行为,请及时联系站长删除,本站将根据实际情况进行积分奖励!请查看:免责声明

快速回复 返回顶部 返回列表