豆豆网

 找回密码
 立即注册

QQ登录

只需一步,快速开始

查看: 1385|回复: 0

一份32层框剪住宅楼结构CAD施工图纸(预应力管桩、含建施)(集水坑大样图)

[复制链接]

0

主题

0

帖子

1576

积分

超级版主

Rank: 8Rank: 8

积分
1576
发表于 2020-3-10 16:40:04 | 显示全部楼层 |阅读模式

该帖子包含附件可供参考学习和下载,您可以 搜索 更多您想要的资源


  • 建筑类别:住宅
  • 建筑高度类型:高层建筑
  • 建筑地上层数:32层
  • 图纸设计深度:施工图
  • 民用建筑设计使用年限:50年
  • 建筑设计结构形式:钢筋混凝土结构
  • 钢筋混凝土结构:框架剪力墙
  • 基础形式 :桩基础
  • 结构安全等级:二级
  • 抗震设防烈度:6度抗震
  • 风压:0.60kN/平方米
  • 参考图纸:82张

附件详情

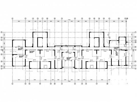
包括:建筑图:地下一层平面图、平面图、屋顶层平面图、机房层平面图、立面图、剖面图、楼梯平面放大图、局部立面放大图、墙身大样、门窗表;结构图:结构设计总说明、桩基 平面布置图 、承台大样图、地下室及架空层柱墙平面图、地下室墙身配筋示意图及墙身大样明细表、地下室及架空层墙边缘构件配筋图、柱墙平面图、墙边缘构件配筋图、屋面及构架层柱墙平面图、地下室底板模板配筋图、地下室底板梁配筋图、风井、集水坑大样图、模板图、板配筋图、梁配筋图、屋面层模板图、屋面层板配筋图 、屋面层梁配筋图、机房层模板配筋图、构架层模板配筋图、机房层梁配筋图、构架层梁配筋图、楼梯大样共82张图纸。

桩基础布置图

地下室底板梁配筋图

板配筋图

模板图

柱墙平面图

人防节点

楼梯平面图

坡道结构平面

梁配筋图

预应力管桩施工图 - 1
第 1 张图
预应力管桩施工图 - 2
第 2 张图
预应力管桩施工图 - 3
第 3 张图
预应力管桩施工图 - 4
第 4 张图
预应力管桩施工图 - 5
第 5 张图
预应力管桩施工图 - 6
第 6 张图
以上是部分图纸截图,有些图框没有放大后再截图,可能截图里不清晰或者看不到内容,您可以在下载后查看具体内容

温馨提示:该资料由网友于2020-3-10 16:40:04上传分享,您可以下载该资料进行学习和参考,如有侵权内容或者违法行为,请及时联系站长删除,如有疑问,您可以在居住建筑专区发帖交流相关知识。

附件2099v11edfcc0seccccf0dfc01.zip

7.31 MB

下载  售价: 100 积分    赚积分

预应力管桩施工图相关帖子

回复

使用道具 举报

您需要登录后才可以回帖 登录 | 立即注册

本版积分规则

QQ|联系我们|豆豆网 ( 苏ICP备20004746号-1 )

GMT+8, 2025-12-17 17:24 , Processed in 0.016809 second(s), 27 queries .

本站所有内容均由网友自主分享,如有侵权内容或者违法行为,请及时联系站长删除,本站将根据实际情况进行积分奖励!请查看:免责声明

快速回复 返回顶部 返回列表