豆豆网

 找回密码
 立即注册

QQ登录

只需一步,快速开始

查看: 669|回复: 0

一份12层框架办公楼结构CAD施工图纸(蜂巢芯密肋楼盖)

[复制链接]

0

主题

0

帖子

1390

积分

超级版主

Rank: 8Rank: 8

积分
1390
发表于 2020-3-10 20:25:39 | 显示全部楼层 |阅读模式

该帖子包含附件可供参考学习和下载,您可以 搜索 更多您想要的资源


  • 建筑类别:办公
  • 建筑高度类型:高层建筑
  • 建筑地上层数:11层
  • 建筑地下层数:2层
  • 图纸设计深度:施工图
  • 民用建筑设计使用年限:50年
  • 建筑设计结构形式:钢筋混凝土结构
  • 钢筋混凝土结构:框架
  • 基础形式 :独立基础,筏形基础
  • 结构安全等级:一级
  • 地基基础设计等级:乙级
  • 抗震设防烈度:6度抗震
  • 风压:0.35kN/平方米
  • 雪压:0.45kN/平方米
  • 地下室功能:人防
  • 参考图纸:42张
  • 设计年代:近代

附件详情

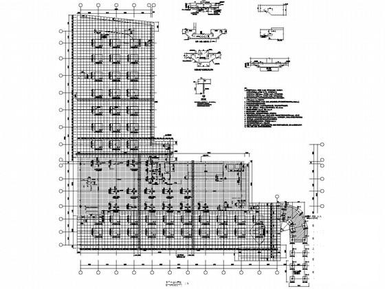
该项目是长沙某12层框架结构办公楼项目,地下室两层,蜂巢芯密肋楼盖,抗震设防烈度为6度,筏板基础、独立基础,基础设计等级为乙级,地下室负二层局部为人防地下室,人防等级为核六级。
包括:结构设计总说明,现浇钢筋混凝土蜂巢芯密肋楼盖结构说明,基础平面布置图,车道平面、坡面布置图,室外楼梯梁平面布置图,室外楼梯板 平面布置图 ,各层竖向构件平面图,各层梁平面图,板配筋平面图,楼梯大样图,人防 楼梯详图 等共计42张图。
12月。


室外楼梯梁平面布置图

地下室顶板梁配筋平面图

2层梁配筋平面图

2层板配筋平面图

8层梁配筋平面图

8层板配筋平面图

人防楼梯详图

屋面层梁配筋平面图

地下室负一层板平面图

蜂巢芯密肋楼盖 - 1
第 1 张图
蜂巢芯密肋楼盖 - 2
第 2 张图
蜂巢芯密肋楼盖 - 3
第 3 张图
蜂巢芯密肋楼盖 - 4
第 4 张图
蜂巢芯密肋楼盖 - 5
第 5 张图
蜂巢芯密肋楼盖 - 6
第 6 张图
以上是部分图纸截图,有些图框没有放大后再截图,可能截图里不清晰或者看不到内容,您可以在下载后查看具体内容

温馨提示:该资料由网友于2020-3-10 20:25:39上传分享,您可以下载该资料进行学习和参考,如有侵权内容或者违法行为,请及时联系站长删除,如有疑问,您可以在建筑施工专区发帖交流相关知识。

附件2099v11edfcewcce1ww2cd1fcs.rar

5.6 MB

售价: 100 积分    赚积分

蜂巢芯密肋楼盖相关帖子

回复

使用道具 举报

您需要登录后才可以回帖 登录 | 立即注册

本版积分规则

QQ|联系我们|豆豆网 ( 苏ICP备20004746号-1 )

GMT+8, 2025-12-26 23:32 , Processed in 0.037857 second(s), 28 queries .

本站所有内容均由网友自主分享,如有侵权内容或者违法行为,请及时联系站长删除,本站将根据实际情况进行积分奖励!请查看:免责声明

快速回复 返回顶部 返回列表