豆豆网

 找回密码
 立即注册

QQ登录

只需一步,快速开始

查看: 2025|回复: 0

一份29层大型商业中心给排消防喷淋CAD施工图纸

[复制链接]

0

主题

0

帖子

1384

积分

超级版主

Rank: 8Rank: 8

积分
1384
发表于 2020-3-12 21:51:12 | 显示全部楼层 |阅读模式

该帖子包含附件可供参考学习和下载,您可以 搜索 更多您想要的资源


  • 附件设计说明:有
  • 建筑类别:办公,商业,酒店
  • 建筑高度类型:高层建筑
  • 建筑设计结构形式:钢筋混凝土结构
  • 建筑地上层数:29层
  • 建筑地下层数:1层
  • 图纸设计深度:施工图
  • 参考图纸:51张
  • 设计年代:近代
  • 地下室用途:设备用房
  • 生活供水设计:生活给水系统
  • 生产供水设计:热水系统
  • 排水设计:雨水系统,消防排水
  • 消防设计:室外消火栓系统,室内消火栓系统,喷淋系统,灭火器配置系统
  • 供水方式:分区供水
  • 供水分区:三区
  • 排水体制:雨污分流
  • 项目所在地:安徽

附件详情

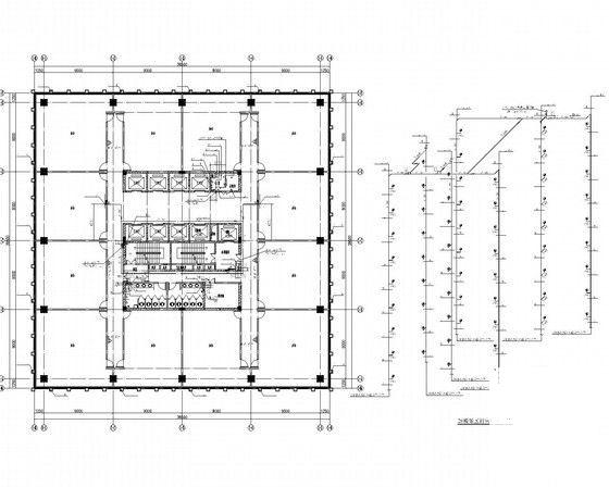
  • 高区喷淋干管系统图
  • 十三层生活给水干管系统图
  • 低区消火栓系统图
  • 高区消火栓系统图
  • 低区喷淋干管系统图
  • 喷淋水箱出水管系统图
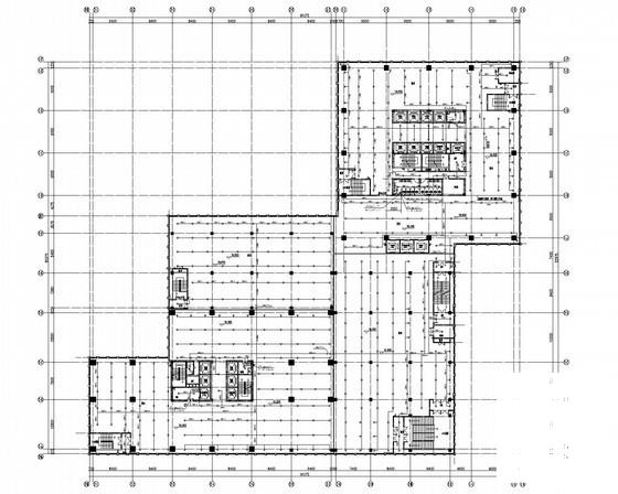
  • 机房给排水、消防平面图
  • 喷头布置平面图
  • 喷淋管道平面图
  • 管道井大样图
  • 用水表安装透视图
  • 消防布置平面图
  • 喷头布置平面图
  • 高区喷淋干管系统图
  • 裙房低区消火栓系统透视图

附件详情

一、项目概要:
1#、2#楼及其裙房为一类高层综合类建筑。位于合肥市。1#楼计24层,2#楼计29层。一层建筑±0.000绝对标高为16.95m。屋面相对标高99.85m。建筑内功能包括办公、酒店式办公及商场。设备房设于本楼地下室内。
二、设计范围:
1、建筑物内生活给水系统、热水系统,雨、污排水系统;
2、建筑物内消火栓系统,喷淋系统;
3、建筑物内灭火器配置。
三、生活给水系统:
1、本楼4层及以下生活给水由城市市政给水管网供给;5层及以上由变频设备供水。本楼给水系统共分为五个区,1#楼低区:一层~四层为室外低区(市政直供);2#楼低区:一层~四层为室外低区(市政直供);1#楼加压中I区:五~十层,变频供水。2#加压中I区:五~十一层,变频供水。1#楼加压中II区:十一~十五层,变频供水。2#楼加压中II区:十二~十七层,变频供水。1#楼加压中III区:十六~二十层,变频供水。2#楼加压中III区:十八~二十三层,变频供水。1#楼加压高区:二十一~二十四层,变频供水。2#楼加压高区:二十四~二十九层,变频供水。生活供水泵房设置在本楼地下室内。
2、各用水点及不同性质的用水均分表计量。
四、生活热水系统:
1、2#楼酒店式办公部分户内热水由户内电开水器提供。1#楼办公部分饮用热水由业主自理。
五、排水系统:
1、该项目采用生活污废合流及采取雨污分流制系统。污水经化粪池处理后,排入市政污水管。
2、1#楼公共卫生间排水采用排水立管配置专用通气立管的双立管排水系统。2#楼酒店式办公的小卫生间内采用漩流降噪特殊单立管排水系统,2#楼小办公室内设置单立管排水系统,预留各层洗涤盆排水接口。
3、屋面雨水经管道收集后排至室外雨水井。
4、空调冷凝水经管道收集后排至室外雨水井。
共51张

喷淋布置图

排水管道布置平面图

管道图

给排 消防系统

给排消防平面图

喷淋管道平面图

管道大样图

商业中心消防 - 1
第 1 张图
商业中心消防 - 2
第 2 张图
商业中心消防 - 3
第 3 张图
商业中心消防 - 4
第 4 张图
商业中心消防 - 5
第 5 张图
商业中心消防 - 6
第 6 张图
商业中心消防 - 7
第 7 张图
以上是部分图纸截图,有些图框没有放大后再截图,可能截图里不清晰或者看不到内容,您可以在下载后查看具体内容

温馨提示:该资料由网友于2020-3-12 21:51:12上传分享,您可以下载该资料进行学习和参考,如有侵权内容或者违法行为,请及时联系站长删除,如有疑问,您可以在商业建筑专区发帖交流相关知识。

附件2099v11edc00wsfcs02fc11cs2.rar

8.97 MB

下载  售价: 100 积分    赚积分

商业中心消防相关帖子

回复

使用道具 举报

您需要登录后才可以回帖 登录 | 立即注册

本版积分规则

QQ|联系我们|豆豆网 ( 苏ICP备20004746号-1 )

GMT+8, 2025-12-26 00:43 , Processed in 0.019439 second(s), 27 queries .

本站所有内容均由网友自主分享,如有侵权内容或者违法行为,请及时联系站长删除,本站将根据实际情况进行积分奖励!请查看:免责声明

快速回复 返回顶部 返回列表