豆豆网

 找回密码
 立即注册

QQ登录

只需一步,快速开始

查看: 4152|回复: 0

[CAD]19层三级甲等医院配电工程图纸47张(2015年设计)

[复制链接]

0

主题

0

帖子

1516

积分

超级版主

Rank: 8Rank: 8

积分
1516
发表于 2020-3-12 22:29:10 | 显示全部楼层 |阅读模式

该帖子包含附件可供参考学习和下载,您可以 搜索 更多您想要的资源


  • 建筑类别:医疗
  • 建筑高度类型:多层建筑,高层建筑
  • 建筑设计结构形式:钢筋混凝土结构
  • 建筑设计面积:102558.16平方米
  • 建筑地上层数:19层
  • 图纸设计深度:施工图
  • 参考图纸:47张
  • 设计年代:近代
  • 地下室用途:人防
  • 节点大样:人防
  • 防雷等级:第三类
  • 接地方式:TN-S
  • 项目所在地:安徽
  • 强电 设计: 供配电系统 ,电气照明,其它

附件详情

  • 电气施工总说明
  • 线路路径规划示意图
  • 电气总平面布置图
  • 高压主、备供电气接线系统图
  • #1总配电室低压主供系统图
  • #1总配电室低压备供系统图
  • #1总配电室高压主供系统图(一)
  • #1总配电室高压主供系统图(二)
  • #1总配电室高压备供系统图
  • #1总配电室电气/照明布置图
  • #1总配电室电缆沟桥架/接地平面图
  • #1总配电室断面图
  • 100AH落地式直流屏外形图
  • 100AH落地式直流电源系统图
  • #2分配电室低压主供系统图(一~四)
  • #2分配电室低压备供系统图(一~三)
  • #2分配电室(主供)高压系统图
  • #2分配电室高压备供系统图
  • #2分配电室电气/ 照明平面图
  • #2分配电室电缆沟桥架/接地平面图
  • #2分配电室断面图
  • 40AH落地式直流屏外形图
  • 40AH落地式直流电源系统图
  • 1#分配电室低压主供系统图
  • 1#分配电室低压备供系统图
  • 1#分配电室(主供)高压系统图
  • 1#分配电室(备供)高压系统图
  • ……

附件详情

该项目用电包括本院一期配电工程。二期工程的儿科病房大楼14层、后勤综合楼19层、专科专病楼10层、综合培训楼16层, 约102558.16mm2因部分建筑图纸没有设计好,也未建设,故此次只设计一期工程电气图纸和二期工程的部分电气图纸,其余部分以后另行设计。
,图纸共47张。


2#分配电室低压备供系统图

1#分配电室(主供)高压系统图

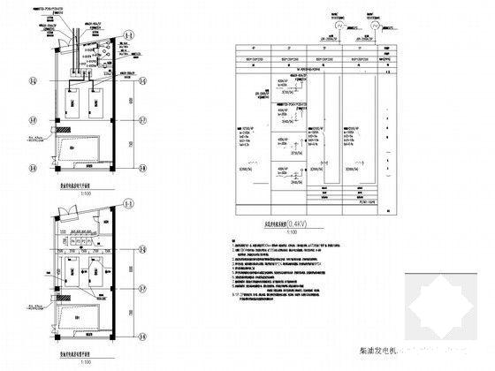
柴油发电机房电气平面

高压主、备供电气接线系统图

电气总平面布置图

工程图纸设计 - 1
第 1 张图
工程图纸设计 - 2
第 2 张图
工程图纸设计 - 3
第 3 张图
工程图纸设计 - 4
第 4 张图
工程图纸设计 - 5
第 5 张图
工程图纸设计 - 6
第 6 张图
以上是部分图纸截图,有些图框没有放大后再截图,可能截图里不清晰或者看不到内容,您可以在下载后查看具体内容

温馨提示:该资料由网友于2020-3-12 22:29:10上传分享,您可以下载该资料进行学习和参考,如有侵权内容或者违法行为,请及时联系站长删除,如有疑问,您可以在毕业设计专区发帖交流相关知识。

附件2099v11edec0ec0c2cfe12c2e0.rar

5.75 MB

下载  售价: 100 积分    赚积分

工程图纸设计相关帖子

回复

使用道具 举报

您需要登录后才可以回帖 登录 | 立即注册

本版积分规则

QQ|联系我们|豆豆网 ( 苏ICP备20004746号-1 )

GMT+8, 2025-12-25 18:37 , Processed in 0.016728 second(s), 27 queries .

本站所有内容均由网友自主分享,如有侵权内容或者违法行为,请及时联系站长删除,本站将根据实际情况进行积分奖励!请查看:免责声明

快速回复 返回顶部 返回列表