豆豆网

 找回密码
 立即注册

QQ登录

只需一步,快速开始

查看: 1871|回复: 0

一份轻钢结构节点详细设计CAD图纸图纸集(35个节点)

[复制链接]

0

主题

0

帖子

776

积分

超级版主

Rank: 8Rank: 8

积分
776
发表于 2020-3-25 13:28:01 | 显示全部楼层 |阅读模式

该帖子包含附件可供参考学习和下载,您可以 搜索 更多您想要的资源


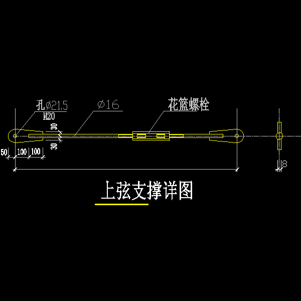
轻钢结构节点详图图集主要包括:角钢支撑与柱连接大样图、雨篷大样、檐口大样、上弦支撑详图、屋脊节点及墙柱、圆钢支撑与柱连接大样图、拉条及斜拉条、拉条与钢梁连接详图、门侧柱下板、墙架柱详图等共35张图纸。

上弦支撑详图.dwg
上弦支撑详图.dwg
刚性系杆详图.dwg
刚性系杆详图.dwg
刚架柱与墙梁连接(内).dwg
刚架柱与墙梁连接(内).dwg
刚架柱与墙梁连接(外).dwg
刚架柱与墙梁连接(外).dwg
圆钢支撑与柱连接大样图.dwg
圆钢支撑与柱连接大样图.dwg
地梁配筋图.dwg
地梁配筋图.dwg
以上是部分图纸截图,有些图框没有放大后再截图,可能截图里不清晰或者看不到内容,您可以在下载后查看具体内容

温馨提示:该资料由网友于2020-3-25 13:28:01上传分享,您可以下载该资料进行学习和参考,如有侵权内容或者违法行为,请及时联系站长删除,如有疑问,您可以在结构设计专区发帖交流相关知识。

附件2099v11ecwfde21e011w2c2.zip

627.05 KB

下载  售价: 100 积分    赚积分

相关帖子

回复

使用道具 举报

您需要登录后才可以回帖 登录 | 立即注册

本版积分规则

QQ|联系我们|豆豆网 ( 苏ICP备20004746号-1 )

GMT+8, 2025-12-28 19:21 , Processed in 0.015391 second(s), 28 queries .

本站所有内容均由网友自主分享,如有侵权内容或者违法行为,请及时联系站长删除,本站将根据实际情况进行积分奖励!请查看:免责声明

快速回复 返回顶部 返回列表