豆豆网

 找回密码
 立即注册

QQ登录

只需一步,快速开始

查看: 904|回复: 0

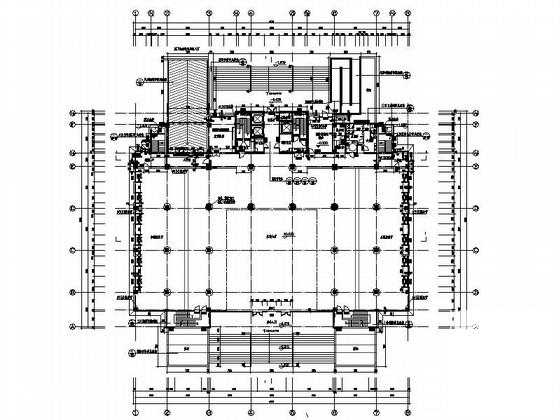
税务局21层办公楼建筑施工CAD图纸

[复制链接]

0

主题

0

帖子

1642

积分

超级版主

Rank: 8Rank: 8

积分
1642
发表于 2020-1-30 13:43:02 | 显示全部楼层 |阅读模式

该帖子包含附件可供参考学习和下载,您可以 搜索 更多您想要的资源


  • 办公楼类型:行政办公楼
  • 建筑高度类型:高层建筑
  • 外立面材料:幕墙
  • 建筑设计结构形式:钢筋混凝土结构
  • 钢筋混凝土结构:框架
  • 图纸设计深度:施工图
  • 项目所在地:山东
  • 图纸设计风格:欧陆风格
  • 图纸设计流派:artdeco
  • 图纸设计格式:天正建筑CAD 7.0,CAD2000
  • 参考图纸:52张
  • 建筑设计面积:21163平方米
  • 占地面积:10512.3平方米
  • 容积率:1.70平方米
  • 建筑密度:18.3%
  • 绿化率:30%
  • 建筑高度:90.2m
  • 地上层数:21层
  • 地下层数:1层
  • 地下室功能:车库
  • 设计效果图:无
  • 机动车辆停车位:68个

附件详情

功能:办公楼
该资料包含:总平面图,各层平面图,立面图,剖面图,楼梯及电梯详图,人防出口详图,卫生间详图,汽车坡道详图。
总开间x进深:52.7x41.5米
建筑基底面积:1920平方米

图5

图6

图7

图8

第 1 张图
第 1 张图
第 2 张图
第 2 张图
第 3 张图
第 3 张图
第 4 张图
第 4 张图
第 5 张图
第 5 张图
以上是部分图纸截图,有些图框没有放大后再截图,可能截图里不清晰或者看不到内容,您可以在下载后查看具体内容

温馨提示:该资料由网友于2020-1-30 13:43:02上传分享,您可以下载该资料进行学习和参考,如有侵权内容或者违法行为,请及时联系站长删除,如有疑问,您可以在建筑施工专区发帖交流相关知识。

附件2099v11eds0dddweswccc11f0c.rar

8.46 MB

下载  售价: 100 积分    赚积分

相关帖子

回复

使用道具 举报

您需要登录后才可以回帖 登录 | 立即注册

本版积分规则

QQ|联系我们|豆豆网 ( 苏ICP备20004746号-1 )

GMT+8, 2025-12-28 00:51 , Processed in 0.015387 second(s), 28 queries .

本站所有内容均由网友自主分享,如有侵权内容或者违法行为,请及时联系站长删除,本站将根据实际情况进行积分奖励!请查看:免责声明

快速回复 返回顶部 返回列表