豆豆网

 找回密码
 立即注册

QQ登录

只需一步,快速开始

查看: 2363|回复: 0

[CAD]6层框架结构高校办公楼毕业设计方案(建筑、结构图纸)(钢筋混凝土)

[复制链接]

0

主题

0

帖子

1111

积分

超级版主

Rank: 8Rank: 8

积分
1111
发表于 2020-3-29 21:34:48 | 显示全部楼层 |阅读模式

该帖子包含附件可供参考学习和下载,您可以 搜索 更多您想要的资源


附件详情

该资料为济南大学学士学位论文
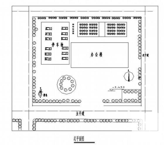
工程名称:青岛大学办公楼
工程类型:多层办公建筑
工程规模:总建筑面积5614.96平方米,建筑高度21.6m,6层,一层至六层层高均为3.6m,室内外高差为0.450m;东西长58.9m,南北长为16m,钢筋混凝土框架结构,呈长方形平面。
建筑物空间功能要求:一层有门厅,门卫室,接待室等公共用房,二—六层为办公室,资料室和会议室,每层男女厕所各设2个
地震基本烈度:7度;
基本雪压:0.2KN/平方米
共56页。


办公楼建筑结构图 - 1
第 1 张图
办公楼建筑结构图 - 2
第 2 张图
办公楼建筑结构图 - 3
第 3 张图
办公楼建筑结构图 - 4
第 4 张图
以上是部分图纸截图,有些图框没有放大后再截图,可能截图里不清晰或者看不到内容,您可以在下载后查看具体内容

温馨提示:该资料由网友于2020-3-29 21:34:48上传分享,您可以下载该资料进行学习和参考,如有侵权内容或者违法行为,请及时联系站长删除,如有疑问,您可以在办公建筑专区发帖交流相关知识。

附件2099v11ede0cfcfwf0fceeccfc.rar

1.23 MB

下载  售价: 100 积分    赚积分

办公楼建筑结构图相关帖子

回复

使用道具 举报

您需要登录后才可以回帖 登录 | 立即注册

本版积分规则

QQ|联系我们|豆豆网 ( 苏ICP备20004746号-1 )

GMT+8, 2025-12-25 05:49 , Processed in 0.018945 second(s), 27 queries .

本站所有内容均由网友自主分享,如有侵权内容或者违法行为,请及时联系站长删除,本站将根据实际情况进行积分奖励!请查看:免责声明

快速回复 返回顶部 返回列表