豆豆网

 找回密码
 立即注册

QQ登录

只需一步,快速开始

查看: 2579|回复: 0

一份5层框架毕业设计方案CAD图纸

[复制链接]

0

主题

0

帖子

1075

积分

超级版主

Rank: 8Rank: 8

积分
1075
发表于 2020-4-1 08:20:09 | 显示全部楼层 |阅读模式

该帖子包含附件可供参考学习和下载,您可以 搜索 更多您想要的资源


附件详情

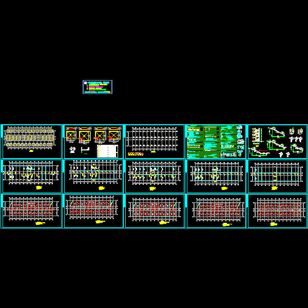
[学士]某五层框架毕业设计图纸
该资料为:[学士]某五层框架毕业设计图纸
结构体系:钢筋混凝土框架结构
建筑抗震设防烈度:7度
该资料包含:
结构设计施工总说明、基础平面布置图、基础详图、框架柱平面分布布置图、楼梯详图、梁配筋图、结构平面图共15张图纸。


2

3

一份5层框架毕业设计方案CAD图纸
第 1 张图
以上是部分图纸截图,有些图框没有放大后再截图,可能截图里不清晰或者看不到内容,您可以在下载后查看具体内容

温馨提示:该资料由网友于2020-4-1 08:20:09上传分享,您可以下载该资料进行学习和参考,如有侵权内容或者违法行为,请及时联系站长删除,如有疑问,您可以在毕业设计专区发帖交流相关知识。

附件2099v11ec2csc0e2c0cfwc0.rar

393.49 KB

下载  售价: 100 积分    赚积分

相关帖子

回复

使用道具 举报

您需要登录后才可以回帖 登录 | 立即注册

本版积分规则

QQ|联系我们|豆豆网 ( 苏ICP备20004746号-1 )

GMT+8, 2025-12-28 13:17 , Processed in 0.014850 second(s), 28 queries .

本站所有内容均由网友自主分享,如有侵权内容或者违法行为,请及时联系站长删除,本站将根据实际情况进行积分奖励!请查看:免责声明

快速回复 返回顶部 返回列表