豆豆网

 找回密码
 立即注册

QQ登录

只需一步,快速开始

查看: 909|回复: 0

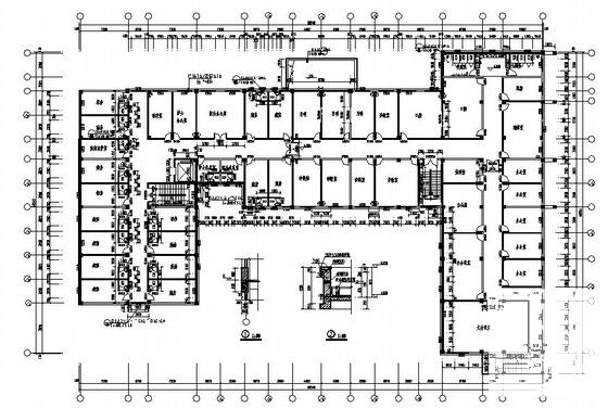
洛水卫生院3层综合楼建筑结构水电CAD施工图纸

[复制链接]

0

主题

0

帖子

1388

积分

超级版主

Rank: 8Rank: 8

积分
1388
发表于 2020-2-1 11:19:16 | 显示全部楼层 |阅读模式

该帖子包含附件可供参考学习和下载,您可以 搜索 更多您想要的资源


  • 办公楼类型:行政办公楼
  • 建筑高度类型:多层建筑
  • 建筑设计结构形式:钢筋混凝土结构
  • 钢筋混凝土结构:框架
  • 图纸设计深度:施工图
  • 项目所在地:四川
  • 图纸设计风格:现代风格
  • 图纸设计流派:现代
  • 图纸设计格式:天正建筑CAD 7.0,CAD2000
  • 建筑设计面积:5493.4平方米
  • 占地面积:1876.1平方米
  • 建筑高度:12.6m
  • 地上层数:3层
  • 设计效果图:无

附件详情

[什邡市]洛水某卫生院三层综合楼建筑结构水电施工图


工程名称:什邡市洛水卫生院——综合楼
建设地点:什邡市洛水镇
使用功能:医院建筑
建筑耐火等级:耐火等级为二级
建筑抗震设防烈度:八度第二组
建筑耐久年限:50年
主要结构类型:框架结构
建筑占地面积:1876.1m2
总建筑设计面积:5493.4m2
建筑层数:3层
建筑总高度:12.6m
建筑层高:一层4.2m,二~三层3.9m




第 1 张图
第 1 张图
第 2 张图
第 2 张图
第 3 张图
第 3 张图
第 4 张图
第 4 张图
以上是部分图纸截图,有些图框没有放大后再截图,可能截图里不清晰或者看不到内容,您可以在下载后查看具体内容

温馨提示:该资料由网友于2020-2-1 11:19:16上传分享,您可以下载该资料进行学习和参考,如有侵权内容或者违法行为,请及时联系站长删除,如有疑问,您可以在建筑施工专区发帖交流相关知识。

附件2099v11edseccwsw000cf1ecsf.rar

5.15 MB

下载  售价: 100 积分    赚积分

相关帖子

回复

使用道具 举报

您需要登录后才可以回帖 登录 | 立即注册

本版积分规则

QQ|联系我们|豆豆网 ( 苏ICP备20004746号-1 )

GMT+8, 2025-11-17 00:18 , Processed in 0.018816 second(s), 28 queries .

本站所有内容均由网友自主分享,如有侵权内容或者违法行为,请及时联系站长删除,本站将根据实际情况进行积分奖励!请查看:免责声明

快速回复 返回顶部 返回列表