豆豆网

 找回密码
 立即注册

QQ登录

只需一步,快速开始

查看: 2533|回复: 0

钢结构墙身详图纸及节点图纸(PDF)

[复制链接]

0

主题

0

帖子

1096

积分

超级版主

Rank: 8Rank: 8

积分
1096
发表于 2020-2-5 09:10:38 | 显示全部楼层 |阅读模式

该帖子包含附件可供参考学习和下载,您可以 搜索 更多您想要的资源


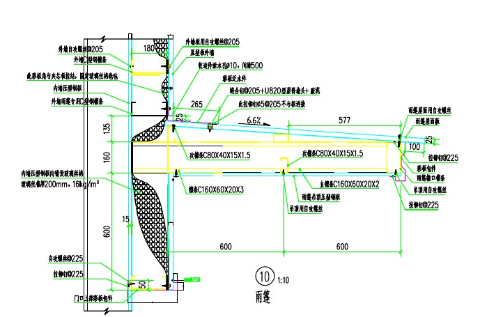
共1张图纸

墙身设计图 - 1
第 1 张图
墙身设计图 - 2
第 2 张图
墙身设计图 - 3
第 3 张图
墙身设计图 - 4
第 4 张图
墙身设计图 - 5
第 5 张图
墙身设计图 - 6
第 6 张图
墙身设计图 - 7
第 7 张图
墙身设计图 - 8
第 8 张图
墙身设计图 - 9
第 9 张图
墙身设计图 - 10
第 10 张图
以上是部分图纸截图,有些图框没有放大后再截图,可能截图里不清晰或者看不到内容,您可以在下载后查看具体内容

温馨提示:该资料由网友于2020-2-5 09:10:38上传分享,您可以下载该资料进行学习和参考,如有侵权内容或者违法行为,请及时联系站长删除,如有疑问,您可以在结构设计专区发帖交流相关知识。

附件2099v11e2021w0wcf1fd2wc.pdf

438.33 KB

下载  售价: 100 积分    赚积分

墙身设计图相关帖子

回复

使用道具 举报

您需要登录后才可以回帖 登录 | 立即注册

本版积分规则

QQ|联系我们|豆豆网 ( 苏ICP备20004746号-1 )

GMT+8, 2025-12-17 21:54 , Processed in 0.018724 second(s), 27 queries .

本站所有内容均由网友自主分享,如有侵权内容或者违法行为,请及时联系站长删除,本站将根据实际情况进行积分奖励!请查看:免责声明

快速回复 返回顶部 返回列表