豆豆网

 找回密码
 立即注册

QQ登录

只需一步,快速开始

查看: 1826|回复: 0

18层剪力墙结构住宅楼结构CAD施工图纸

[复制链接]

0

主题

0

帖子

1351

积分

超级版主

Rank: 8Rank: 8

积分
1351
发表于 2020-2-6 21:34:02 | 显示全部楼层 |阅读模式

该帖子包含附件可供参考学习和下载,您可以 搜索 更多您想要的资源


  • 建筑类别:住宅
  • 建筑高度:高层建筑
  • 地上层数:18层
  • 地下层数:1层
  • 图纸设计深度:施工图
  • 民用建筑设计使用年限:50年
  • 建筑结构形式:钢筋混凝土结构
  • 钢筋混凝土结构:剪力墙
  • 基础形式 :独立基础,筏形基础
  • 结构安全等级:二级
  • 地基基础设计等级:乙级
  • 抗震设防烈度:7度抗震
  • 风压:0.35kN/平米
  • 参考图纸:24张
  • 图纸年代:近代

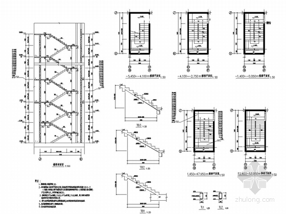
该附件为四川某小区住宅楼,地上18层,地下一层,高为54米,结构型式为剪力墙结构,基础为平板式筏型基础与柱下独立基础,7度设防。
该资料包含:结构设计说明、剪力墙平面布置图、剪力墙详图、结构 、梁平法施工图、 等共24张图。

第 1 张图
第 1 张图
第 2 张图
第 2 张图
第 3 张图
第 3 张图
第 4 张图
第 4 张图
第 5 张图
第 5 张图
第 6 张图
第 6 张图
第 7 张图
第 7 张图
第 8 张图
第 8 张图
第 9 张图
第 9 张图
第 10 张图
第 10 张图
第 11 张图
第 11 张图
第 12 张图
第 12 张图
以上是部分图纸截图,有些图框没有放大后再截图,可能截图里不清晰或者看不到内容,您可以在下载后查看具体内容

温馨提示:该资料由网友于2020-2-6 21:34:02上传分享,您可以下载该资料进行学习和参考,如有侵权内容或者违法行为,请及时联系站长删除,如有疑问,您可以在居住建筑专区发帖交流相关知识。

附件2099v11e20wwfswfwc0ccfc.zip

3.49 MB

下载  售价: 100 积分    赚积分

相关帖子

回复

使用道具 举报

您需要登录后才可以回帖 登录 | 立即注册

本版积分规则

QQ|联系我们|豆豆网 ( 苏ICP备20004746号-1 )

GMT+8, 2025-12-18 21:46 , Processed in 0.015483 second(s), 27 queries .

本站所有内容均由网友自主分享,如有侵权内容或者违法行为,请及时联系站长删除,本站将根据实际情况进行积分奖励!请查看:免责声明

快速回复 返回顶部 返回列表