豆豆网

 找回密码
 立即注册

QQ登录

只需一步,快速开始

查看: 2124|回复: 0

水库进水管非开挖管道顶管专项施工方案

[复制链接]

0

主题

0

帖子

1597

积分

超级版主

Rank: 8Rank: 8

积分
1597
发表于 2020-2-7 17:24:07 | 显示全部楼层 |阅读模式

该帖子包含附件可供参考学习和下载,您可以 搜索 更多您想要的资源


附件详情

  • 2. 顶管施工方案
  • 2.1 方案概述
  • 2.2 顶管工艺流程
  • 2.3 顶管机选型
  • 2.4 顶力计算
  • 2.5 主要施工方法
  • 2.6 顶管出洞及顶进
  • 2.7 减阻泥浆的运用
  • 2.8 顶进测量及轴线控制
  • 2.9 顶管机进洞
  • 2.10 顶管机吊驳措施
  • 3. 钢管管节制作、焊接和防腐
  • 3.1 钢管制作
  • 3.2 顶管的焊接
  • 3.3 钢管防腐
  • 4. 进度安排
  • 5. 机械设备、人员安排
  • 6. 应急预案
  • 7. 质量保证措施
  • 8. 安全保证措施

附件详情

本文为石窟进水管非开挖管道顶管施工专项方案,文章详细介绍了顶管出洞及顶进、减阻泥浆的应用,顶管测量和轴线控制,管节制作、焊接和防腐等技术要点,包含工艺阶段详图10张左右,值得参考。
【重点内容】
地质情况
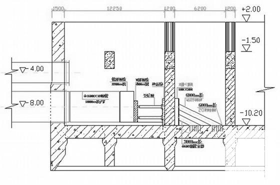
Φ3600mm长江进水管和Φ2400mm水库进水管拟顶管段所穿越土层主要为④层灰色淤泥质粘土层,局部位于为③-1淤泥质粉质粘土和④层灰色淤泥质粘土层(上下基本各半)
方案概述
φ2400×24mm水库进水管总长度约84.91m,穿越沉井围堰部分约54m长采取顶管施工方法,剩余约30.91m根据覆土情况采取开挖埋管施工方法。根据其进水管管道轴线标高(-4.0m)、进水室结构尺寸及沉井底板标高(-10.2m),在沉井进水室内搭设钢支架平台进行顶管施工,后靠背在进水室和前池之间的隔墙基础上采用加设φ609钢管支撑梁的方式延伸至水泵间第二道隔墙,以保证满足顶力要求和隔墙结构安全。
……
根据沉井进水室结构尺寸,φ3600×32mm长江进水管顶管施工管节每节长度为6m,采用陆运汽车运输至现场。管节之间采用焊接连接方式,现场进行防腐修补。顶管后靠背顶在前池和进水室之间的加固隔墙上,并采用φ609钢管斜撑延伸至隔墙后的沉井底板上,在沉井底板浇筑时预埋钢板。
……
顶进测量及轴线控制
顶进中顶管机前进趋势的测定
顶进允许偏差
顶管机进洞
顶管机吊驳措施

含:管道安装总平面图、纵剖面图,顶管施工井内布置平面图、剖面图,开挖埋管段围护结构平面图、剖面图,顶管压浆设备安装布置示意图,顶管机头吊驳施工布置图

近泵室段管道安装总平面示意图

近泵室段管道安装纵剖面图

顶管压浆设备安装布置示意图

顶管洞口止水

顶管专项施工方案 - 1
第 1 张图
顶管专项施工方案 - 2
第 2 张图
顶管专项施工方案 - 3
第 3 张图
顶管专项施工方案 - 4
第 4 张图
顶管专项施工方案 - 5
第 5 张图
以上是部分图纸截图,有些图框没有放大后再截图,可能截图里不清晰或者看不到内容,您可以在下载后查看具体内容

温馨提示:该资料由网友于2020-2-7 17:24:07上传分享,您可以下载该资料进行学习和参考,如有侵权内容或者违法行为,请及时联系站长删除,如有疑问,您可以在方案设计专区发帖交流相关知识。

附件2099v11ecwfff0d0dcww12w.zip

1.57 MB

下载  售价: 100 积分    赚积分

顶管专项施工方案相关帖子

回复

使用道具 举报

您需要登录后才可以回帖 登录 | 立即注册

本版积分规则

QQ|联系我们|豆豆网 ( 苏ICP备20004746号-1 )

GMT+8, 2025-12-27 22:56 , Processed in 0.016735 second(s), 27 queries .

本站所有内容均由网友自主分享,如有侵权内容或者违法行为,请及时联系站长删除,本站将根据实际情况进行积分奖励!请查看:免责声明

快速回复 返回顶部 返回列表