豆豆网

 找回密码
 立即注册

QQ登录

只需一步,快速开始

查看: 2305|回复: 0

一份框剪结构高层及框架结构多层住宅楼结构CAD施工图纸(裙房及建筑图纸)

[复制链接]

0

主题

0

帖子

1596

积分

超级版主

Rank: 8Rank: 8

积分
1596
发表于 2020-2-8 13:48:24 | 显示全部楼层 |阅读模式

该帖子包含附件可供参考学习和下载,您可以 搜索 更多您想要的资源


  • 建筑类别:住宅, 商业
  • 建筑高度类型:多层建筑, 高层建筑
  • 建筑地上层数:18层
  • 图纸设计深度:施工图
  • 民用建筑设计使用年限:50年
  • 钢筋混凝土结构:框架, 剪力墙, 框架剪力墙
  • 基础形式 :独立基础, 筏形基础, 桩基础
  • 结构安全等级:二级
  • 地基基础设计等级:乙级
  • 抗震设防烈度:7度抗震
  • 风压:0.40kN/平方米
  • 参考图纸:176张
  • 设计年代:近代

附件详情

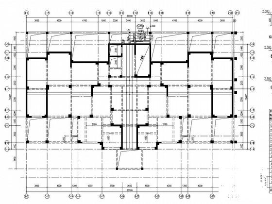
附件详情:该项目为一梯四户单元式高层住宅楼项目,共四个单元,一、三单元为18层剪力墙结构高层,基础为桩筏基础,二单元为框架结构多层住宅,基础采用筏板基础,裙房采用柱下独立基础。抗震设防等级为7度。

该资料包含:结构设计总说明,结构大样图,素砼桩 平面布置图 ,筏板基础结构平面图,剪力墙约束边缘构件、柱表,框架柱(挡土墙)结构布置平面图,墙柱结构平面图及 建筑施工 图等共计176张图。

顶梁结构布置平面图

筏板基础结构平面图

结构大样图

框架柱(挡土墙)结构布置平面图

楼梯配筋图

平面图

墙柱结构平面图

素砼桩平面布置图

剪力墙约束边缘构件、柱表

多层住宅楼建筑图 - 1
第 1 张图
多层住宅楼建筑图 - 2
第 2 张图
多层住宅楼建筑图 - 3
第 3 张图
多层住宅楼建筑图 - 4
第 4 张图
多层住宅楼建筑图 - 5
第 5 张图
多层住宅楼建筑图 - 6
第 6 张图
以上是部分图纸截图,有些图框没有放大后再截图,可能截图里不清晰或者看不到内容,您可以在下载后查看具体内容

温馨提示:该资料由网友于2020-2-8 13:48:24上传分享,您可以下载该资料进行学习和参考,如有侵权内容或者违法行为,请及时联系站长删除,如有疑问,您可以在居住建筑专区发帖交流相关知识。

附件2099v11edfcecfw2c10sddssfc.rar

9.8 MB

下载  售价: 100 积分    赚积分

多层住宅楼建筑图相关帖子

回复

使用道具 举报

您需要登录后才可以回帖 登录 | 立即注册

本版积分规则

QQ|联系我们|豆豆网 ( 苏ICP备20004746号-1 )

GMT+8, 2025-12-18 23:15 , Processed in 0.016137 second(s), 27 queries .

本站所有内容均由网友自主分享,如有侵权内容或者违法行为,请及时联系站长删除,本站将根据实际情况进行积分奖励!请查看:免责声明

快速回复 返回顶部 返回列表