豆豆网

 找回密码
 立即注册

QQ登录

只需一步,快速开始

查看: 3621|回复: 0

一份3层异形柱框架结构别墅结构CAD施工图纸(建筑图纸)

[复制链接]

0

主题

0

帖子

1642

积分

超级版主

Rank: 8Rank: 8

积分
1642
发表于 2020-2-9 10:26:00 | 显示全部楼层 |阅读模式

该帖子包含附件可供参考学习和下载,您可以 搜索 更多您想要的资源


  • 建筑类别:别墅
  • 建筑高度类型:多层建筑
  • 建筑地上层数:3层
  • 建筑地下层数:1层
  • 图纸设计深度:施工图
  • 民用建筑设计使用年限:50年
  • 建筑设计结构形式:钢筋混凝土结构
  • 钢筋混凝土结构:框架
  • 基础形式 :独立基础
  • 结构安全等级:二级
  • 地基基础设计等级:丙级
  • 抗震设防烈度:6度抗震
  • 风压:0.40kN/平方米
  • 雪压:0.50kN/平方米
  • 地下室功能:车库
  • 参考图纸:32张
  • 设计年代:近代

附件详情

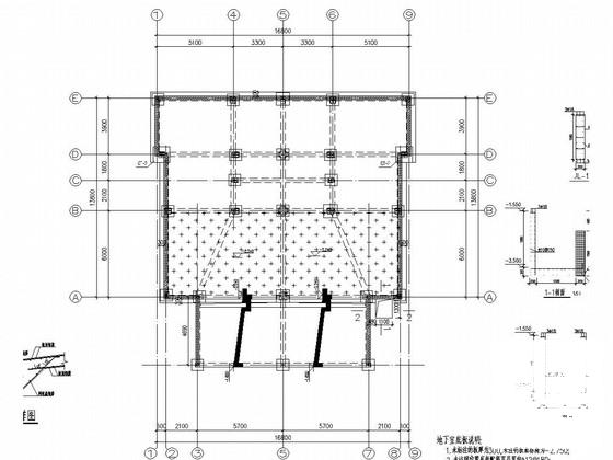
该项目是安徽三层小别墅项目,地下一层,异形柱框架结构,桩基,抗震设防烈度为6度,包括:结构设计总说明,桩位平面图,地下室底板平面图 ,基础梁平法施工图 ,地下室柱布置配筋图,板配筋图,梁平法施工图,柱布置配筋图,楼梯大样, 节点详图 ,半地下层平面图,平面图,门窗表及大样,立面图,剖面图,材料表等共计32张图。
8月。

地下室底板平面图

地下室柱布置配筋图

一层平面

剖面

一层板配筋图

第 1 张图
第 1 张图
第 2 张图
第 2 张图
第 3 张图
第 3 张图
第 4 张图
第 4 张图
第 5 张图
第 5 张图
第 6 张图
第 6 张图
以上是部分图纸截图,有些图框没有放大后再截图,可能截图里不清晰或者看不到内容,您可以在下载后查看具体内容

温馨提示:该资料由网友于2020-2-9 10:26:00上传分享,您可以下载该资料进行学习和参考,如有侵权内容或者违法行为,请及时联系站长删除,如有疑问,您可以在别墅建筑专区发帖交流相关知识。

附件2099v11edfcccsc1ewcc0ccsds.zip

3.13 MB

下载  售价: 100 积分    赚积分

相关帖子

回复

使用道具 举报

您需要登录后才可以回帖 登录 | 立即注册

本版积分规则

QQ|联系我们|豆豆网 ( 苏ICP备20004746号-1 )

GMT+8, 2025-12-24 17:12 , Processed in 0.015792 second(s), 27 queries .

本站所有内容均由网友自主分享,如有侵权内容或者违法行为,请及时联系站长删除,本站将根据实际情况进行积分奖励!请查看:免责声明

快速回复 返回顶部 返回列表