豆豆网

 找回密码
 立即注册

QQ登录

只需一步,快速开始

查看: 772|回复: 0

一份单层门式刚架钢结构工业厂房结构CAD施工图纸(桩基础)

[复制链接]

0

主题

0

帖子

1579

积分

超级版主

Rank: 8Rank: 8

积分
1579
发表于 2020-2-9 14:07:49 | 显示全部楼层 |阅读模式

该帖子包含附件可供参考学习和下载,您可以 搜索 更多您想要的资源


  • 建筑类别:工业建筑
  • 建筑高度类型:单层建筑
  • 建筑地上层数:1层
  • 图纸设计深度:施工图
  • 民用建筑设计使用年限:50年
  • 建筑设计结构形式:钢结构
  • 钢结构:门式刚架
  • 基础形式 :桩基础
  • 结构安全等级:二级
  • 地基基础设计等级:乙级
  • 抗震设防烈度:6度抗震
  • 风压:0.35kN/平方米
  • 雪压:0.50kN/平方米
  • 参考图纸:24张
  • 设计年代:近代

附件详情

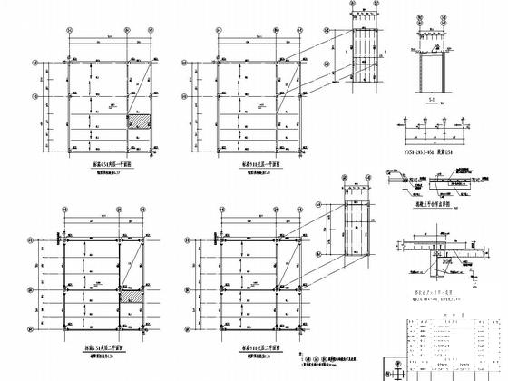
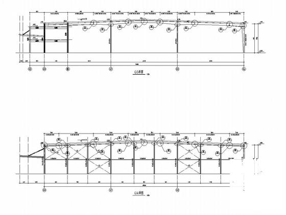
本子项为湖北某普通的工业厂房,地上一层,局部二层,高度为10米,结构抗侧力体系为门式刚架钢结构,基础为桩基,6度设防。
该资料包含:基础平面图、基础梁平面图、柱子平面图、钢屋面结构布置图、檩条布置图、轴柱间支撑布置图、钢结构 节点详图 楼梯详图 等共24张图纸。

基础梁配筋平面图

平面布置图

GJ剖面图(二)

夹层结构图

短柱平面布置图

第 1 张图
第 1 张图
第 2 张图
第 2 张图
第 3 张图
第 3 张图
第 4 张图
第 4 张图
第 5 张图
第 5 张图
第 6 张图
第 6 张图
以上是部分图纸截图,有些图框没有放大后再截图,可能截图里不清晰或者看不到内容,您可以在下载后查看具体内容

温馨提示:该资料由网友于2020-2-9 14:07:49上传分享,您可以下载该资料进行学习和参考,如有侵权内容或者违法行为,请及时联系站长删除,如有疑问,您可以在建筑施工专区发帖交流相关知识。

附件2099v11edfccf2cdffee0secf0.zip

4.98 MB

下载  售价: 100 积分    赚积分

相关帖子

回复

使用道具 举报

您需要登录后才可以回帖 登录 | 立即注册

本版积分规则

QQ|联系我们|豆豆网 ( 苏ICP备20004746号-1 )

GMT+8, 2025-12-27 19:14 , Processed in 0.018419 second(s), 27 queries .

本站所有内容均由网友自主分享,如有侵权内容或者违法行为,请及时联系站长删除,本站将根据实际情况进行积分奖励!请查看:免责声明

快速回复 返回顶部 返回列表