豆豆网

 找回密码
 立即注册

QQ登录

只需一步,快速开始

查看: 2304|回复: 0

一份欧式3层商务会所建筑施工CAD图纸(抗震设防类别)

[复制链接]

0

主题

0

帖子

1384

积分

超级版主

Rank: 8Rank: 8

积分
1384
发表于 2020-2-9 20:19:49 | 显示全部楼层 |阅读模式

该帖子包含附件可供参考学习和下载,您可以 搜索 更多您想要的资源


  • 建筑类别:会所俱乐部
  • 建筑高度类型:多层建筑
  • 外立面材料:涂料
  • 钢筋混凝土结构:框架
  • 图纸设计深度:施工图
  • 项目所在地:黑龙江
  • 图纸设计风格:欧陆风格
  • 图纸设计格式:天正建筑CAD 7.0
  • 参考图纸:42张
  • 设计年代:近代
  • 建筑设计面积:955平方米
  • 建筑高度:27m
  • 建筑地上层数:3层
  • 设计效果图:无

附件详情

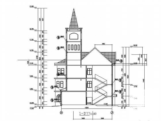
工程概述:该项目总建筑设计面积:955.00平方米;建筑建筑设计结构形式:框架结构;建筑结构类别:3类;抗震设防烈度:6度;抗震设防类别:标准设防类;耐火等级:二级;
该资料包含:设计说明、各层平面图、立面图、剖面图、详图大样、经济技术指标等。

欧式三层商务会所剖面图

欧式三层商务会所平面图

欧式三层商务会所立面图

欧式三层商务会所立面图

欧式三层商务会所立面图

欧式三层商务会所剖面图

欧式三层商务会所平面图

欧式三层商务会所平面图

欧式三层商务会所平面图

欧式三层商务会所详图

欧式三层商务会所详图

欧式三层商务会所详图

总缩略图

第 1 张图
第 1 张图
第 2 张图
第 2 张图
第 3 张图
第 3 张图
第 4 张图
第 4 张图
第 5 张图
第 5 张图
第 6 张图
第 6 张图
第 7 张图
第 7 张图
第 8 张图
第 8 张图
以上是部分图纸截图,有些图框没有放大后再截图,可能截图里不清晰或者看不到内容,您可以在下载后查看具体内容

温馨提示:该资料由网友于2020-2-9 20:19:49上传分享,您可以下载该资料进行学习和参考,如有侵权内容或者违法行为,请及时联系站长删除,如有疑问,您可以在商业建筑专区发帖交流相关知识。

附件2099v11edddcffw200121ccef2.zip

2.25 MB

下载  售价: 100 积分    赚积分

相关帖子

回复

使用道具 举报

您需要登录后才可以回帖 登录 | 立即注册

本版积分规则

QQ|联系我们|豆豆网 ( 苏ICP备20004746号-1 )

GMT+8, 2025-12-27 07:53 , Processed in 0.015228 second(s), 27 queries .

本站所有内容均由网友自主分享,如有侵权内容或者违法行为,请及时联系站长删除,本站将根据实际情况进行积分奖励!请查看:免责声明

快速回复 返回顶部 返回列表