豆豆网

 找回密码
 立即注册

QQ登录

只需一步,快速开始

查看: 679|回复: 0

一份26米跨门式刚架钢结构食品公司厂房结构CAD施工图纸

[复制链接]

0

主题

0

帖子

1352

积分

超级版主

Rank: 8Rank: 8

积分
1352
发表于 2020-2-9 21:10:32 | 显示全部楼层 |阅读模式

该帖子包含附件可供参考学习和下载,您可以 搜索 更多您想要的资源


  • 建筑类别:工业建筑
  • 建筑高度类型:单层建筑
  • 厂房建筑高度类型:单层厂房
  • 建筑地上层数:1层
  • 图纸设计深度:施工图
  • 民用建筑设计使用年限:50年
  • 建筑设计结构形式:钢结构
  • 钢结构:门式刚架
  • 基础形式 :独立基础
  • 结构安全等级:二级
  • 地基基础设计等级:丙级
  • 抗震设防烈度:6度抗震
  • 风压:0.40kN/平方米
  • 雪压:0.50kN/平方米
  • 参考图纸:8张
  • 设计年代:近代

附件详情

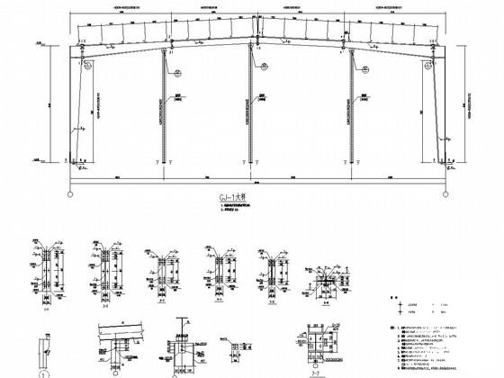
该项目是食品有限公司厂区2#厂房项目,主结构采用轻型门式刚架钢结构。檐口高度为8.0米,柱距7.2米,跨度26米X1,抗震设防烈度:6度(0.05g),基础设计为柱下独立基础,地基持力层为经深层水泥搅拌桩处理的复合地基。
该资料包含:结构设计总说明,桩位平面布置图,基础平面布置图,锚栓 平面布置图 ,屋面结构布置图,GJ-1大样,屋面檩条布置图,墙梁布置图等共计8张图。
分享投稿时间:近几年1月。

基础平面布置图

屋面结构布置图

屋面檩条布置图

墙梁布置图

钢架详图

第 1 张图
第 1 张图
第 2 张图
第 2 张图
第 3 张图
第 3 张图
第 4 张图
第 4 张图
第 5 张图
第 5 张图
第 6 张图
第 6 张图
以上是部分图纸截图,有些图框没有放大后再截图,可能截图里不清晰或者看不到内容,您可以在下载后查看具体内容

温馨提示:该资料由网友于2020-2-9 21:10:32上传分享,您可以下载该资料进行学习和参考,如有侵权内容或者违法行为,请及时联系站长删除,如有疑问,您可以在建筑施工专区发帖交流相关知识。

附件2099v11edfc2c0cc0cs0e20eec.rar

921.22 KB

下载  售价: 100 积分    赚积分

相关帖子

回复

使用道具 举报

您需要登录后才可以回帖 登录 | 立即注册

本版积分规则

QQ|联系我们|豆豆网 ( 苏ICP备20004746号-1 )

GMT+8, 2025-12-30 23:22 , Processed in 0.016599 second(s), 28 queries .

本站所有内容均由网友自主分享,如有侵权内容或者违法行为,请及时联系站长删除,本站将根据实际情况进行积分奖励!请查看:免责声明

快速回复 返回顶部 返回列表